Перейти к контенту
Подбор и сравнение проектов домов от застройщиков Московской области
Подборщик домов
Калькулятор сметы
Калькулятор площади
Форум
Блог
Главная
›
Каталог проектов
›
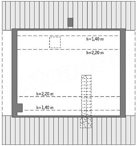
Проект К-13 10 на 10, площадью 96 за 3 867 000 руб
Проект К-13 10 на 10, площадью 96 за 3 867 000 руб
Застройщик: КаркасСтрой
96.0 м²
1 / 3
🏠
96.0 м²
🛏
2 спален
📐
1 этаж
🧱
Каркас
Похожие проекты
Похожие по цене
Похожие по площади
Проект К-20 11 на 9, площадью 96 за 3 854 250 руб
2 спальн. · 1 этаж
от 3 494 400 ₽
→
Проект К-21 9 на 11, площадью 96 за 3 854 250 руб
2 спальн. · 1 этаж
от 3 494 400 ₽
→
Каркасная баня «КБ-39
от 3 495 000 ₽
→
Каркасный дом «Парголово
от 5 045 000 ₽
→
Каркасный дом «Токсово-1
от 5 045 000 ₽
→
Каркасный дом (ШОУРУМ Баркас) 96 м² — г. Балашиха, мкр-н Купавна, Московская область
1 этаж
от 2 880 000 ₽
→
На сайт застройщика