Перейти к контенту
Подбор и сравнение проектов домов от застройщиков Московской области
Подборщик домов
Калькулятор сметы
Калькулятор площади
Форум
Блог
Главная
›
Каталог проектов
›
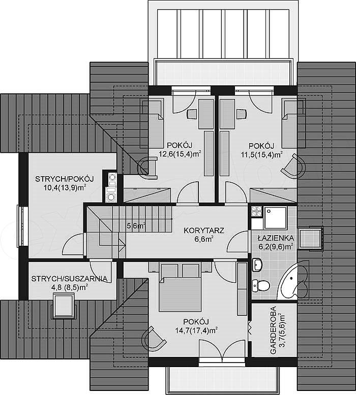
Проект К-178 12 на 11, площадью 263 за 8 784 000 руб
Проект К-178 12 на 11, площадью 263 за 8 784 000 руб
Застройщик: КаркасСтрой
263.0 м²
1 / 3
🏠
263.0 м²
🛏
4 спален
📐
2 этаж
🧱
Каркас
Похожие проекты
Похожие по цене
Похожие по площади
Проект дома AS-1128
1 этаж
от 7 362 000 ₽
→
Проект двухэтажного каркасного дома Тетрис M под ключ от компании БАКО
4 спальн. · 2 санузл. · 2 этаж
от 7 369 700 ₽
→
Кирпичный дом С-143 К «Клевер»
3 спальн. · 2 санузл. · 3 этаж
от 7 372 000 ₽
→
Проект К-178 12 на 11, площадью 263 за 8 784 000 руб
4 спальн. · 2 этаж
от 8 784 000 ₽
→
Проект U-263-1P
2 этаж
от 18 449 900 ₽
→
Проект двухэтажного коттеджа "Вильямс" из газобетона
4 спальн. · 2 этаж
от 11 440 000 ₽
→
На сайт застройщика