Перейти к контенту
Подбор и сравнение проектов домов от застройщиков Московской области
Подборщик домов
Калькулятор сметы
Калькулятор площади
Форум
Блог
Главная
›
Каталог проектов
›
Каркасный дом С-184 КР «Графит»
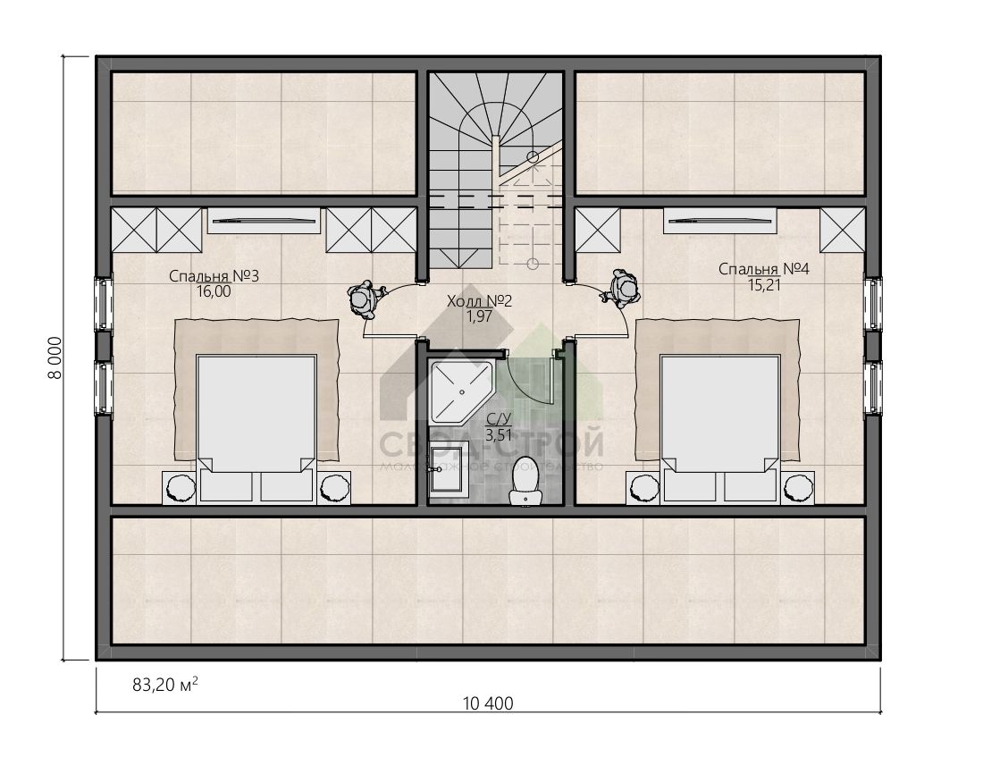
Каркасный дом С-184 КР «Графит»
Застройщик: Свод-Строй
184.0 м²
1 / 3
🏠
184.0 м²
🛏
4 спален
🚿
2 санузл.
📐
2 этаж
🧱
Каркас
Похожие проекты
Похожие по цене
Похожие по площади
Проект дома из газоблоков 12х10 ГББ-86: цена 5743000 руб.
2 спальн. · 1 санузл. · 1 этаж
от 7 109 000 ₽
→
Одноэтажный демонстрационный дом из бруса по Проекту арх. О. Карлсона (2014г.)
3 спальн. · 2 этаж
от 7 109 182 ₽
→
Проект R-101-1P
2 этаж
от 7 098 000 ₽
→
Проект одноэтажного каркасного дома "Меркур"
5 спальн. · 2 этаж
от 13 167 317 ₽
→
Дом по проекту «ЗС 104-22» - Золотое Сечение
4 спальн. · 2 санузл.
от 23 000 000 ₽
→
Дом по проекту «ЗС 921-21» - Золотое Сечение
5 спальн. · 2 санузл.
от 23 000 000 ₽
→
На сайт застройщика