Перейти к контенту
Подбор и сравнение проектов домов от застройщиков Московской области
Подборщик домов
Калькулятор сметы
Калькулятор площади
Форум
Блог
Главная
›
Каталог проектов
›
Проект К-183 9 на 10, площадью 180 за 6 007 500 руб
Проект К-183 9 на 10, площадью 180 за 6 007 500 руб
Застройщик: КаркасСтрой
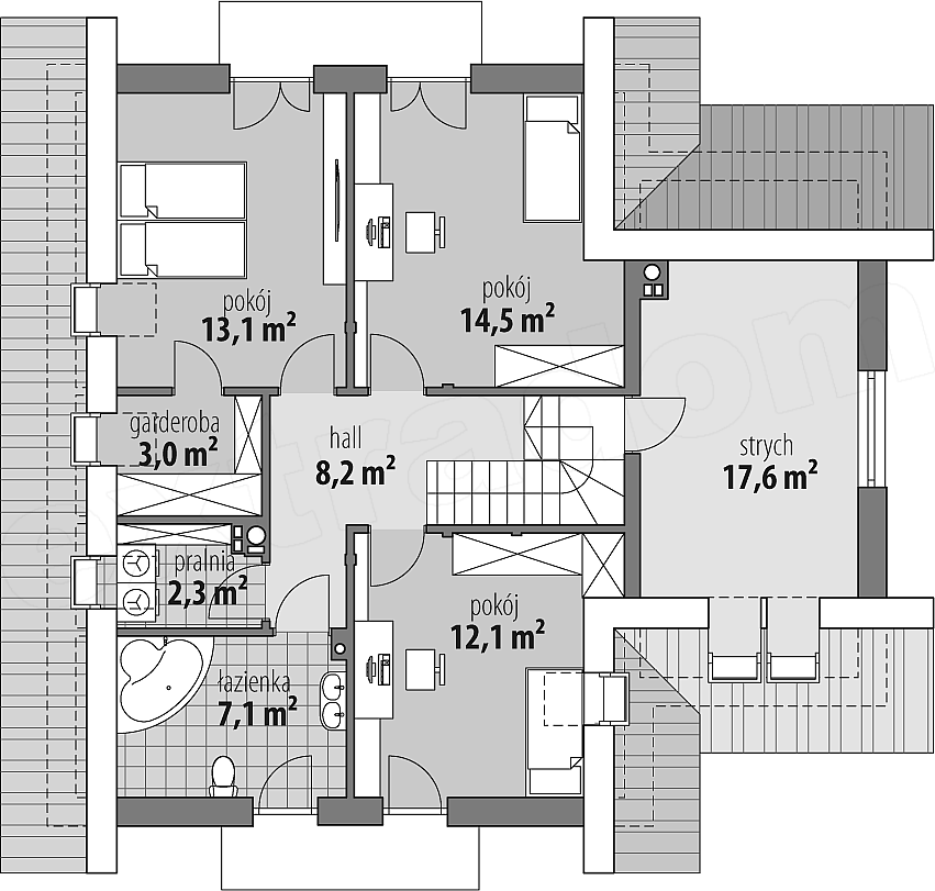
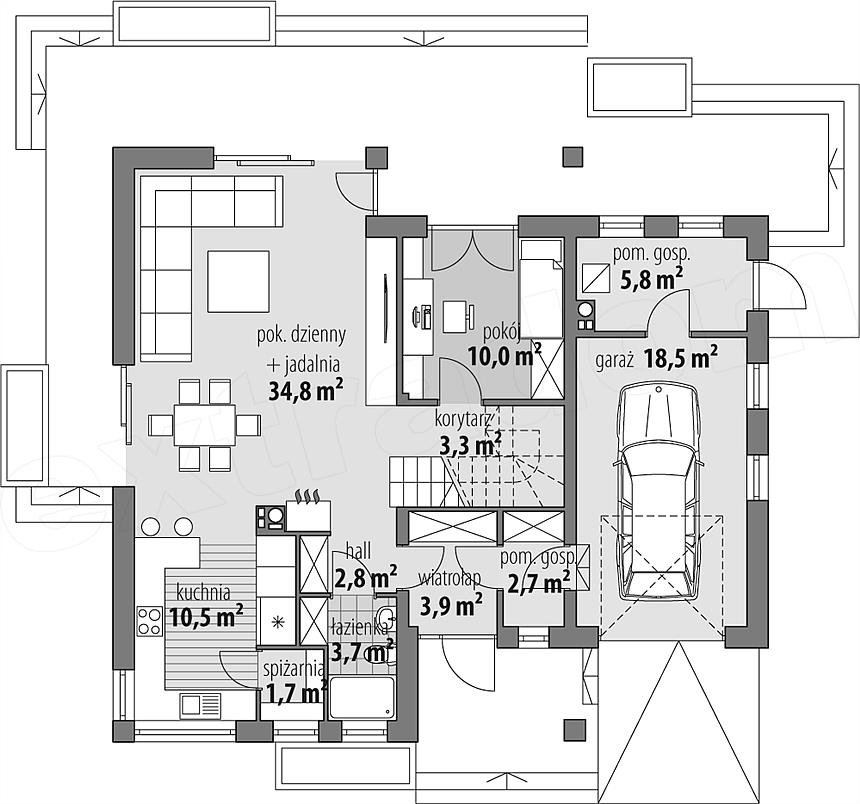
180.0 м²
1 / 5
🏠
180.0 м²
🛏
4 спален
📐
2 этаж
🧱
Каркас
Похожие проекты
Похожие по цене
Похожие по площади
Строительство каркасного дома 9х8 "Каштан" под ключ
5 спальн. · 1 санузл. · 2 этаж
от 5 040 000 ₽
→
Строительство каркасного дома 9х9 "Валькирия" под ключ
5 спальн. · 2 санузл. · 2 этаж
от 5 040 000 ₽
→
Проект К-107 9 на 10, площадью 180 за 6 007 500 руб
4 спальн. · 2 этаж
от 5 040 000 ₽
→
Дом Горки 2 из газобетона: заказать в Москве по низкой цене
4 спальн. · 2 санузл. · 2 этаж
от 9 690 000 ₽
→
Дом Горки 2 из кирпича: заказать в Москве по низкой цене
4 спальн. · 2 санузл. · 2 этаж
от 9 690 000 ₽
→
Проект DOMFIX DUO - двухэтажный дом из газобетона
4 спальн. · 2 этаж
от 9 500 000 ₽
→
На сайт застройщика