Перейти к контенту
Подбор и сравнение проектов домов от застройщиков Московской области
Подборщик домов
Калькулятор сметы
Калькулятор площади
Форум
Блог
Главная
›
Каталог проектов
›
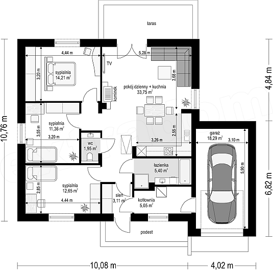
Проект К-32 14 на 11, площадью 152 за 6 067 500 руб
Проект К-32 14 на 11, площадью 152 за 6 067 500 руб
Застройщик: КаркасСтрой
152.0 м²
1 / 2
🏠
152.0 м²
🛏
3 спален
📐
1 этаж
🧱
Каркас
Похожие проекты
Похожие по цене
Похожие по площади
Проект К-94 13 на 12, площадью 152 за 6 093 000 руб
3 спальн. · 1 этаж
от 4 256 000 ₽
→
Строительство каркасного дома 7,5х7,4 "Искона" под ключ
4 спальн. · 2 санузл. · 2 этаж
от 4 255 000 ₽
→
Дом «Смирнов» 8х12,5 м
2 спальн. · 1 этаж
от 4 260 000 ₽
→
Проект одноэтажного дома "Опалево-М4" из бруса
5 спальн. · 2 этаж
от 10 590 279 ₽
→
Проект одноэтажного дома "Энцелад" из бруса
4 спальн. · 2 этаж
от 11 116 870 ₽
→
Дом по проекту «ЗС 134-22-1» - Золотое Сечение
2 спальн. · 2 санузл.
от 19 000 000 ₽
→
На сайт застройщика