Перейти к контенту
Подбор и сравнение проектов домов от застройщиков Московской области
Подборщик домов
Калькулятор сметы
Калькулятор площади
Форум
Блог
Главная
›
Каталог проектов
›
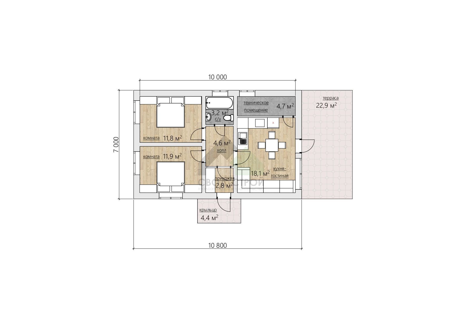
Каркасный дом С-104 КР «Нова»
Каркасный дом С-104 КР «Нова»
Застройщик: Свод-Строй
103.1 м²
1 / 2
🏠
103.1 м²
🛏
2 спален
🚿
1 санузл.
📐
2 этаж
🧱
Каркас
Похожие проекты
Похожие по цене
Похожие по площади
Проект P-058-1P
1 этаж
от 4 098 500 ₽
→
Стрелец 1
3 спальн. · 2 этаж
от 4 099 801 ₽
→
Аллебро 55
2 спальн. · 1 этаж
от 4 097 776 ₽
→
Стрелец 3
3 спальн. · 1 санузл. · 2 этаж
от 3 419 800 ₽
→
Стрелец 3 ЛК
3 спальн. · 1 санузл. · 2 этаж
от 3 619 800 ₽
→
Проект одноэтажного дома "Скандик-3" из бруса
4 спальн. · 2 этаж
от 6 946 500 ₽
→
На сайт застройщика