Перейти к контенту
Подбор и сравнение проектов домов от застройщиков Московской области
Подборщик домов
Калькулятор сметы
Калькулятор площади
Форум
Блог
Главная
›
Каталог проектов
›
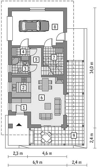
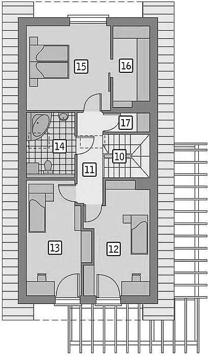
Проект К-48 9 на 16, площадью 305 за 10 071 000 руб
Проект К-48 9 на 16, площадью 305 за 10 071 000 руб
Застройщик: КаркасСтрой
305.0 м²
1 / 3
🏠
305.0 м²
🛏
3 спален
📐
2 этаж
🧱
Каркас
Похожие проекты
Похожие по цене
Похожие по площади
Дом из газобетона Проект ГБ-242
3 спальн. · 2 санузл. · 2 этаж
от 8 539 000 ₽
→
Дом из газобетона Проект ГБ-7
3 спальн. · 2 санузл. · 2 этаж
от 8 539 000 ₽
→
Проект U-121-1P
2 этаж
от 8 535 800 ₽
→
Проект К-48 9 на 16, площадью 305 за 10 071 000 руб
3 спальн. · 2 этаж
от 10 071 000 ₽
→
Проект дома AS-500
3 этаж
от 12 747 500 ₽
→
Проект дома E-305-1P
3 этаж
от 21 350 000 ₽
→
На сайт застройщика