Перейти к контенту
Подбор и сравнение проектов домов от застройщиков Московской области
Подборщик домов
Калькулятор сметы
Калькулятор площади
Форум
Блог
Главная
›
Каталог проектов
›
Проект дома E-305-1P
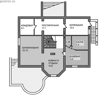
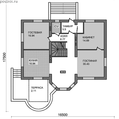
Проект дома E-305-1P
Застройщик: Юникс-Строй
305.0 м²
1 / 4
🏠
305.0 м²
📐
3 этаж
🧱
Пеноблок
Похожие проекты
Похожие по цене
Похожие по площади
Проект U-262-1K
2 этаж
от 21 346 240 ₽
→
Проект U-261-1K
2 этаж
от 21 356 080 ₽
→
Проект U-267-1K
2 этаж
от 21 336 400 ₽
→
Проект К-48 9 на 16, площадью 305 за 10 071 000 руб
3 спальн. · 2 этаж
от 10 071 000 ₽
→
Проект К-48 9 на 16, площадью 305 за 10 071 000 руб
3 спальн. · 2 этаж
от 8 540 000 ₽
→
Проект дома AS-500
3 этаж
от 12 747 500 ₽
→
На сайт застройщика