Перейти к контенту
Подбор и сравнение проектов домов от застройщиков Московской области
Подборщик домов
Калькулятор сметы
Калькулятор площади
Форум
Блог
Главная
›
Каталог проектов
›
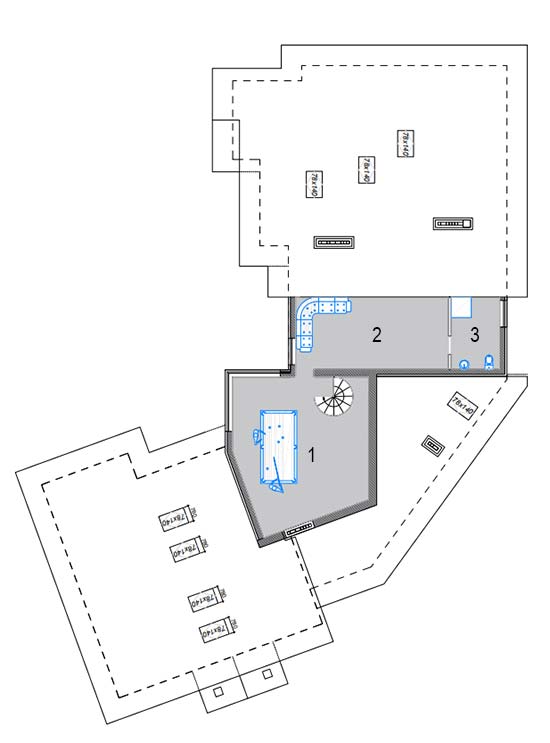
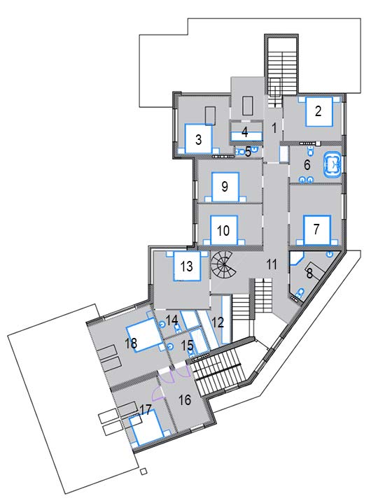
Двухэтажный дом с мансардой в стиле Шале "Салланш"
Двухэтажный дом с мансардой в стиле Шале "Салланш"
Застройщик: ОлимпСтройСервис
644.3 м²
1 / 8
🏠
644.3 м²
🛏
11 спален
🚿
12 санузл.
📐
2 этаж
🧱
Из керамических блоков
Похожие проекты
Похожие по цене
Похожие по площади
Проект N-258-1D
3 этаж
от 38 730 000 ₽
→
Проект E-472-1K
3 этаж
от 38 736 800 ₽
→
Проект M-257-1D
2 этаж
от 38 569 500 ₽
→
Проект К-241 18 на 18, площадью 641 за 21 438 000 руб
5 спальн. · 2 этаж
от 21 438 000 ₽
→
Проект К-241 18 на 18, площадью 641 за 21 438 000 руб
5 спальн. · 2 этаж
от 17 948 000 ₽
→
Проект S-641-1K
3 этаж
от 52 562 000 ₽
→
На сайт застройщика