Перейти к контенту
Подбор и сравнение проектов домов от застройщиков Московской области
Подборщик домов
Калькулятор сметы
Калькулятор площади
Форум
Блог
Главная
›
Каталог проектов
›
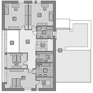
Проект К-241 18 на 18, площадью 641 за 21 438 000 руб
Проект К-241 18 на 18, площадью 641 за 21 438 000 руб
Застройщик: КаркасСтрой
641.0 м²
1 / 3
🏠
641.0 м²
🛏
5 спален
📐
2 этаж
🧱
Каркас
Похожие проекты
Похожие по цене
Похожие по площади
Проект G-253-1P
2 этаж
от 17 948 000 ₽
→
Проект «Tarm»
от 17 950 000 ₽
→
Проект «Tarm»
от 17 950 000 ₽
→
Проект К-241 18 на 18, площадью 641 за 21 438 000 руб
5 спальн. · 2 этаж
от 21 438 000 ₽
→
Проект S-641-1K
3 этаж
от 52 562 000 ₽
→
Двухэтажный дом с мансардой в стиле Шале "Салланш"
11 спальн. · 12 санузл. · 2 этаж
от 38 658 000 ₽
→
На сайт застройщика