Перейти к контенту
Подбор и сравнение проектов домов от застройщиков Московской области
Подборщик домов
Калькулятор сметы
Калькулятор площади
Форум
Блог
Главная
›
Каталог проектов
›
Проект G-253-1P
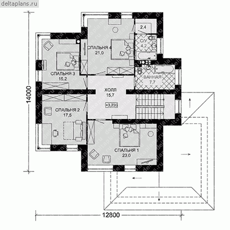
Проект G-253-1P
Застройщик: Юникс-Строй
256.4 м²
1 / 3
🏠
256.4 м²
📐
2 этаж
🧱
Пеноблок
Похожие проекты
Похожие по цене
Похожие по площади
Проект К-241 18 на 18, площадью 641 за 21 438 000 руб
5 спальн. · 2 этаж
от 17 948 000 ₽
→
Проект «Tarm»
от 17 950 000 ₽
→
Проект «Tarm»
от 17 950 000 ₽
→
Проект M-247-1K
2 этаж
от 21 015 780 ₽
→
Проект дома H-258-1P
2 этаж
от 17 931 900 ₽
→
Проект C-257-1K
3 этаж
от 21 044 480 ₽
→
На сайт застройщика