Перейти к контенту
Подбор и сравнение проектов домов от застройщиков Московской области
Подборщик домов
Калькулятор сметы
Калькулятор площади
Форум
Блог
Главная
›
Каталог проектов
›
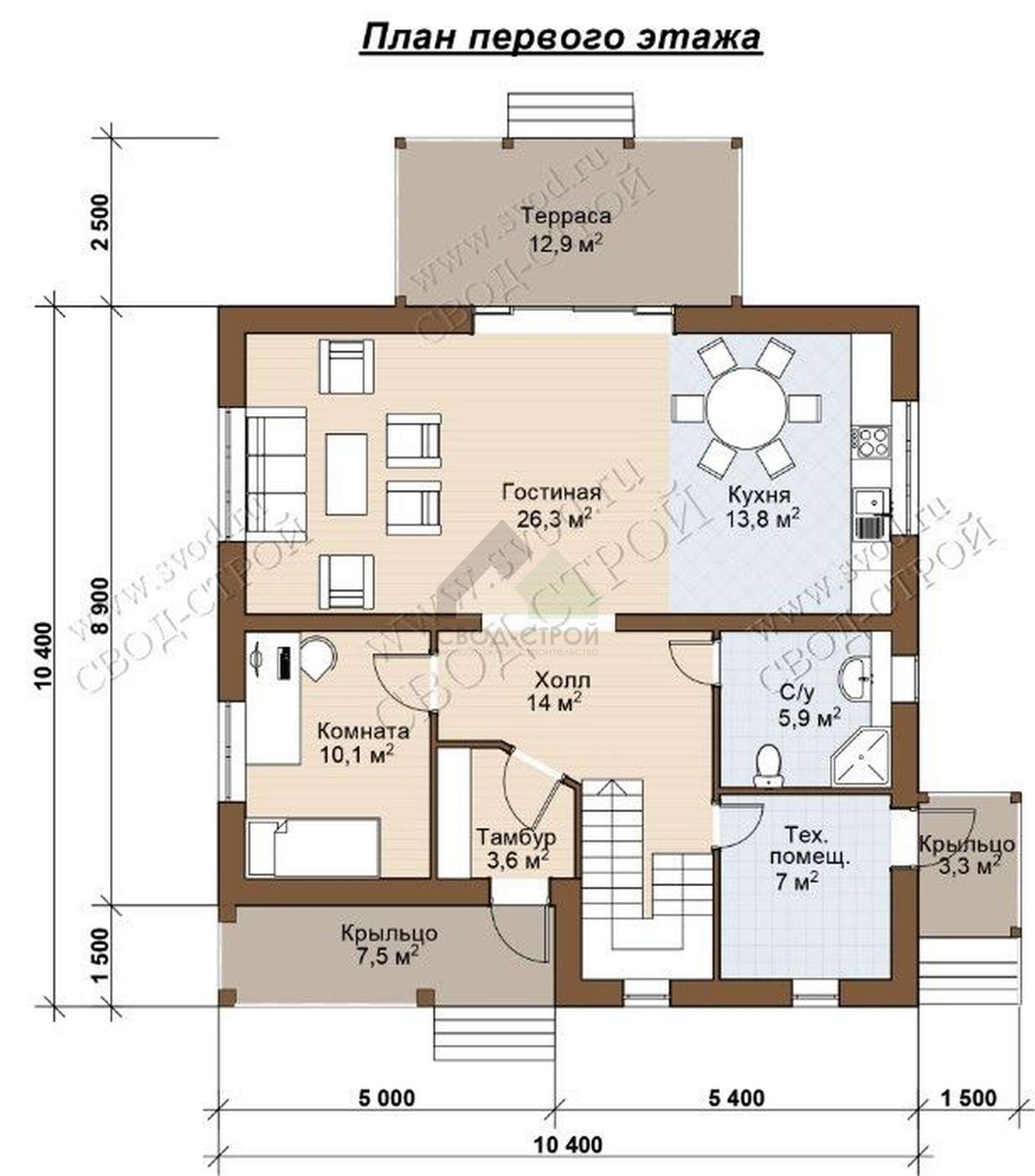
Дом из газобетонных блоков С-233 ГБ «Сибирь»
Дом из газобетонных блоков С-233 ГБ «Сибирь»
Застройщик: Свод-Строй
232.5 м²
1 / 3
🏠
232.5 м²
🛏
4 спален
🚿
3 санузл.
📐
4 этаж
🧱
Газобетон
Похожие проекты
Похожие по цене
Похожие по площади
Дом из керамических блоков С-233 КЕ «Сибирь»
4 спальн. · 3 санузл. · 4 этаж
от 10 162 000 ₽
→
Кирпичный дом С-221 К «Чехов»
5 спальн. · 2 санузл. · 2 этаж
от 10 164 000 ₽
→
ТКБ-134
3 спальн. · 2 санузл. · 2 этаж
от 10 165 000 ₽
→
Дом из керамических блоков С-233 КЕ «Сибирь»
4 спальн. · 3 санузл. · 4 этаж
от 10 162 000 ₽
→
Каркасный дом С-233 КР «Сибирь»
4 спальн. · 3 санузл. · 4 этаж
от 8 842 000 ₽
→
Кирпичный дом С-233 К «Сибирь»
4 спальн. · 3 санузл. · 4 этаж
от 10 866 000 ₽
→
На сайт застройщика