Перейти к контенту
Подбор и сравнение проектов домов от застройщиков Московской области
Подборщик домов
Калькулятор сметы
Калькулятор площади
Форум
Блог
Главная
›
Каталог проектов
›
Проект A-255-1P
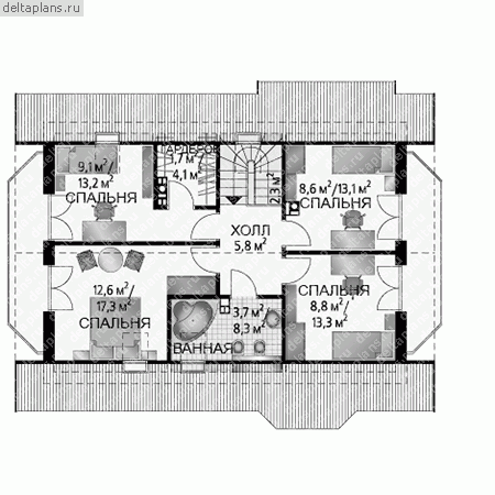
Проект A-255-1P
Застройщик: Юникс-Строй
150.79 м²
1 / 3
🏠
150.79 м²
📐
2 этаж
🧱
Пеноблок
Похожие проекты
Похожие по цене
Похожие по площади
Проект V-150-1P
2 этаж
от 10 551 100 ₽
→
Проект U-153-1P
2 этаж
от 10 539 200 ₽
→
Проект U-153-2P
2 этаж
от 10 539 200 ₽
→
Проект дома «Трюфф»
3 спальн. · 1 этаж
от 12 691 000 ₽
→
Проект C-148-1D
2 этаж
от 22 620 000 ₽
→
Проект V-150-1P
2 этаж
от 10 551 100 ₽
→
На сайт застройщика