Перейти к контенту
Подбор и сравнение проектов домов от застройщиков Московской области
Подборщик домов
Калькулятор сметы
Калькулятор площади
Форум
Блог
Главная
›
Каталог проектов
›
Каркасный дом С-119 КР «Фьорд»
Каркасный дом С-119 КР «Фьорд»
Застройщик: Свод-Строй
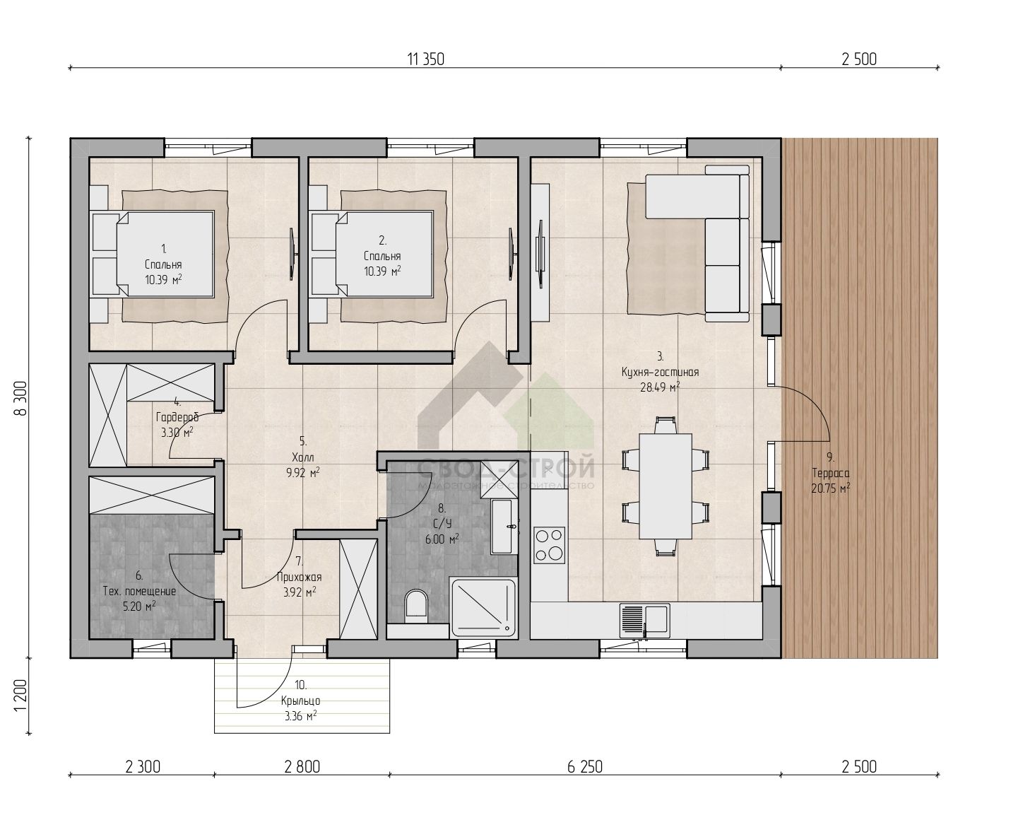
118.6 м²
1 / 2
🏠
118.6 м²
🛏
2 спален
🚿
1 санузл.
📐
2 этаж
🧱
Каркас
Похожие проекты
Похожие по цене
Похожие по площади
Проект каркасного дома с мансардой Звенигород S под ключ от компании БАКО
2 спальн. · 2 санузл. · 2 этаж
от 4 955 600 ₽
→
Проект DOMFIX 1 - одноэтажный каменный дом
2 спальн. · 1 этаж
от 4 950 000 ₽
→
Проект двухэтажного коттеджа "Моби" из газобетона
2 этаж
от 4 956 000 ₽
→
Аллебро 120
3 спальн. · 1 этаж
от 6 156 403 ₽
→
Проект T-118-1P
2 этаж
от 8 295 000 ₽
→
Проект U-117-1K
1 этаж
от 9 715 360 ₽
→
На сайт застройщика