Перейти к контенту
Подбор и сравнение проектов домов от застройщиков Московской области
Подборщик домов
Калькулятор сметы
Калькулятор площади
Форум
Блог
Главная
›
Каталог проектов
›
ПД - 205-5 - Строительство домов из Каркаса, СИП, Бруса под ключ
ПД - 205-5 - Строительство домов из Каркаса, СИП, Бруса под ключ
Застройщик: Стройград
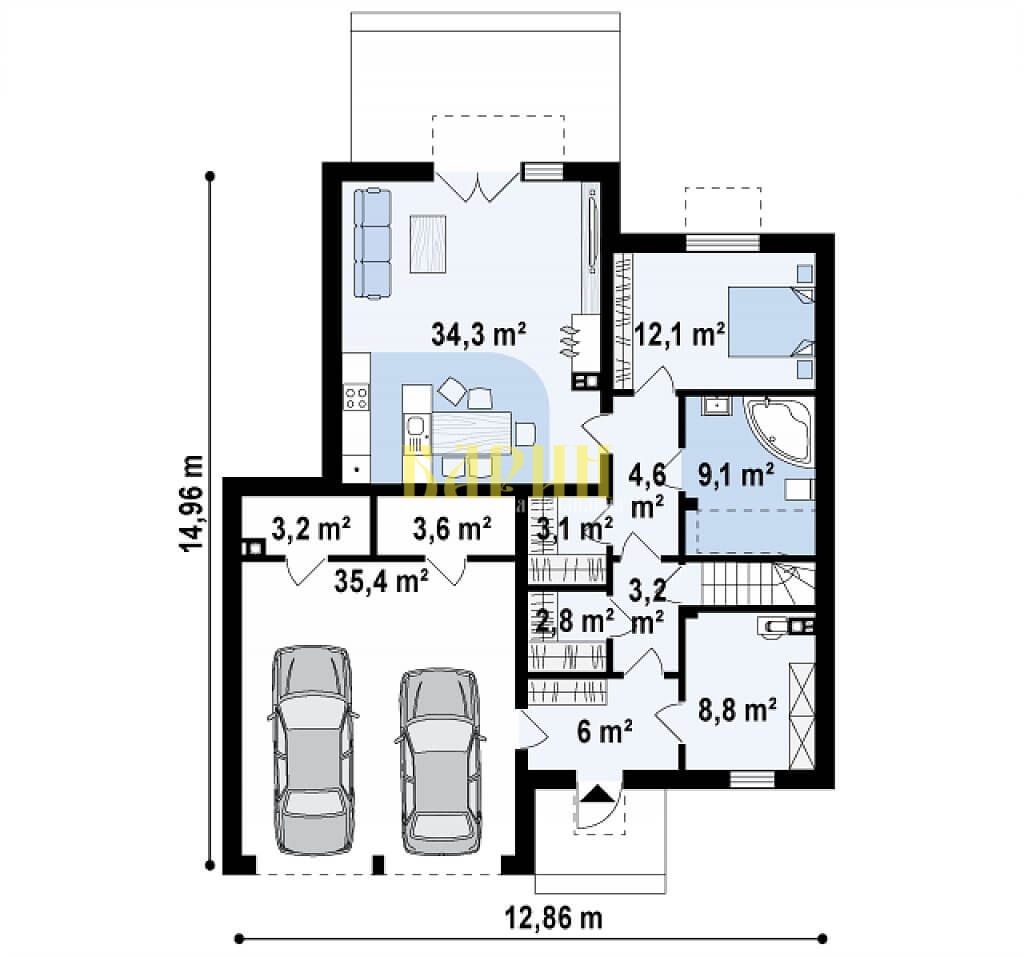
205.0 м²
1 / 3
🏠
205.0 м²
🛏
5 спален
🚿
2 санузл.
📐
2 этаж
Похожие проекты
Похожие по цене
Похожие по площади
Проект каркасного дома КП-452
1 этаж
от 4 400 000 ₽
→
ПД - 206 - Строительство домов из Каркаса, СИП, Бруса под ключ
3 спальн. · 2 санузл. · 2 этаж
от 4 400 000 ₽
→
Каркасный дом «Канкун»
5 спальн. · 2 этаж
от 4 401 600 ₽
→
Проект двухэтажного дома "Булат" из бруса
3 спальн. · 2 этаж
от 16 090 207 ₽
→
Проект одноэтажного каркасного дома "Марфик"
5 спальн. · 2 этаж
от 15 162 365 ₽
→
Каркасный дом «Приозерск
от 10 515 000 ₽
→
На сайт застройщика