Перейти к контенту
Подбор и сравнение проектов домов от застройщиков Московской области
Подборщик домов
Калькулятор сметы
Калькулятор площади
Форум
Блог
Главная
›
Каталог проектов
›
ПД - 206 - Строительство домов из Каркаса, СИП, Бруса под ключ
ПД - 206 - Строительство домов из Каркаса, СИП, Бруса под ключ
Застройщик: Стройград
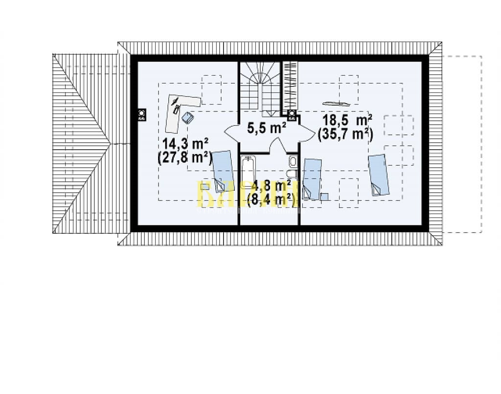
206.0 м²
1 / 3
🏠
206.0 м²
🛏
3 спален
🚿
2 санузл.
📐
2 этаж
Похожие проекты
Похожие по цене
Похожие по площади
Проект каркасного дома КП-452
1 этаж
от 4 400 000 ₽
→
ПД - 205-5 - Строительство домов из Каркаса, СИП, Бруса под ключ
5 спальн. · 2 санузл. · 2 этаж
от 4 400 000 ₽
→
Каркасный дом «Канкун»
5 спальн. · 2 этаж
от 4 401 600 ₽
→
Проект двухэтажного дома "Уголок-М7" из бруса
3 спальн. · 2 этаж
от 15 600 705 ₽
→
Проект двухэтажного каркасного дома "Дуглас"
6 спальн. · 3 этаж
от 15 669 440 ₽
→
Проект одноэтажного дома "Клевер" из бруса
4 спальн. · 2 этаж
от 12 442 282 ₽
→
На сайт застройщика