Перейти к контенту
Подбор и сравнение проектов домов от застройщиков Московской области
Подборщик домов
Калькулятор сметы
Калькулятор площади
Форум
Блог
Главная
›
Каталог проектов
›
ПД - 96 - Строительство домов из Каркаса, СИП, Бруса под ключ
ПД - 96 - Строительство домов из Каркаса, СИП, Бруса под ключ
Застройщик: Стройград
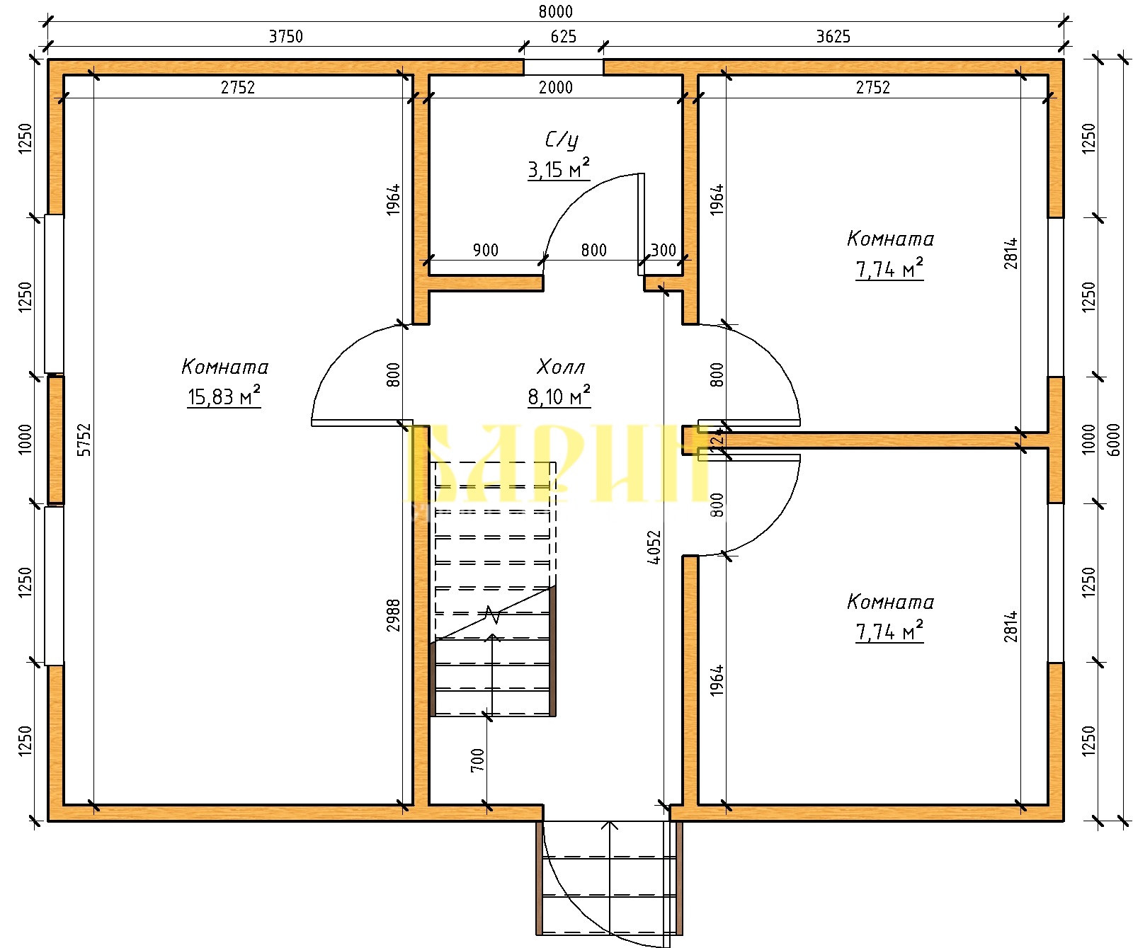
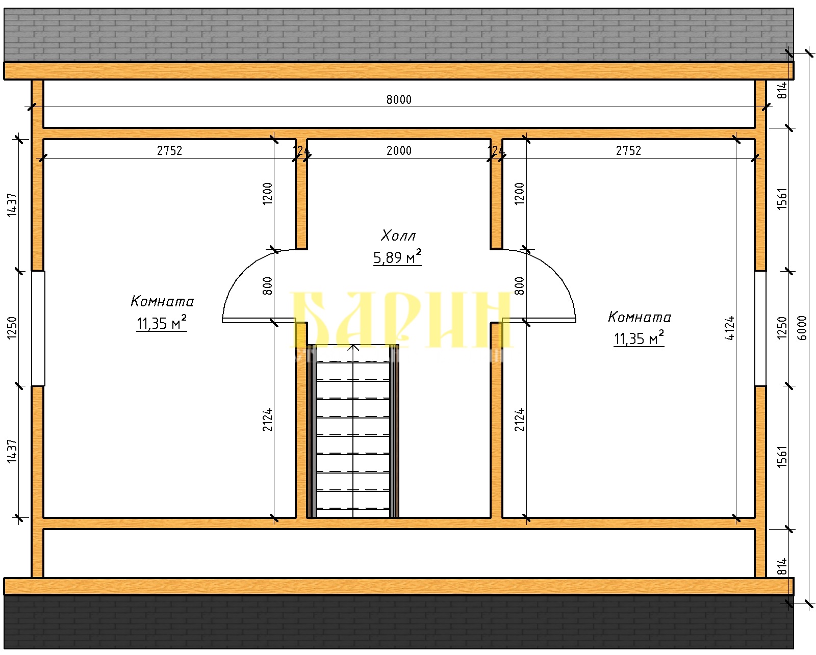
96.0 м²
1 / 3
🏠
96.0 м²
🛏
5 спален
🚿
1 санузл.
📐
2 этаж
Похожие проекты
Похожие по цене
Похожие по площади
Строительство каркасного дома 8х6 "Ермак" под ключ
4 спальн. · 1 санузл. · 2 этаж
от 2 634 000 ₽
→
Каркасная баня «КБ-31
от 2 650 000 ₽
→
Дом «Акимов» 8х8 м
2 спальн. · 1 этаж
от 2 630 000 ₽
→
Каркасный дом «Парголово
от 5 045 000 ₽
→
Каркасный дом «Токсово-1
от 5 045 000 ₽
→
Каркасный дом (ШОУРУМ Баркас) 96 м² — г. Балашиха, мкр-н Купавна, Московская область
1 этаж
от 2 880 000 ₽
→
На сайт застройщика