Перейти к контенту
Подбор и сравнение проектов домов от застройщиков Московской области
Подборщик домов
Калькулятор сметы
Калькулятор площади
Форум
Блог
Главная
›
Каталог проектов
›
Дом из клееного бруса «Королев» | ЭкоТех
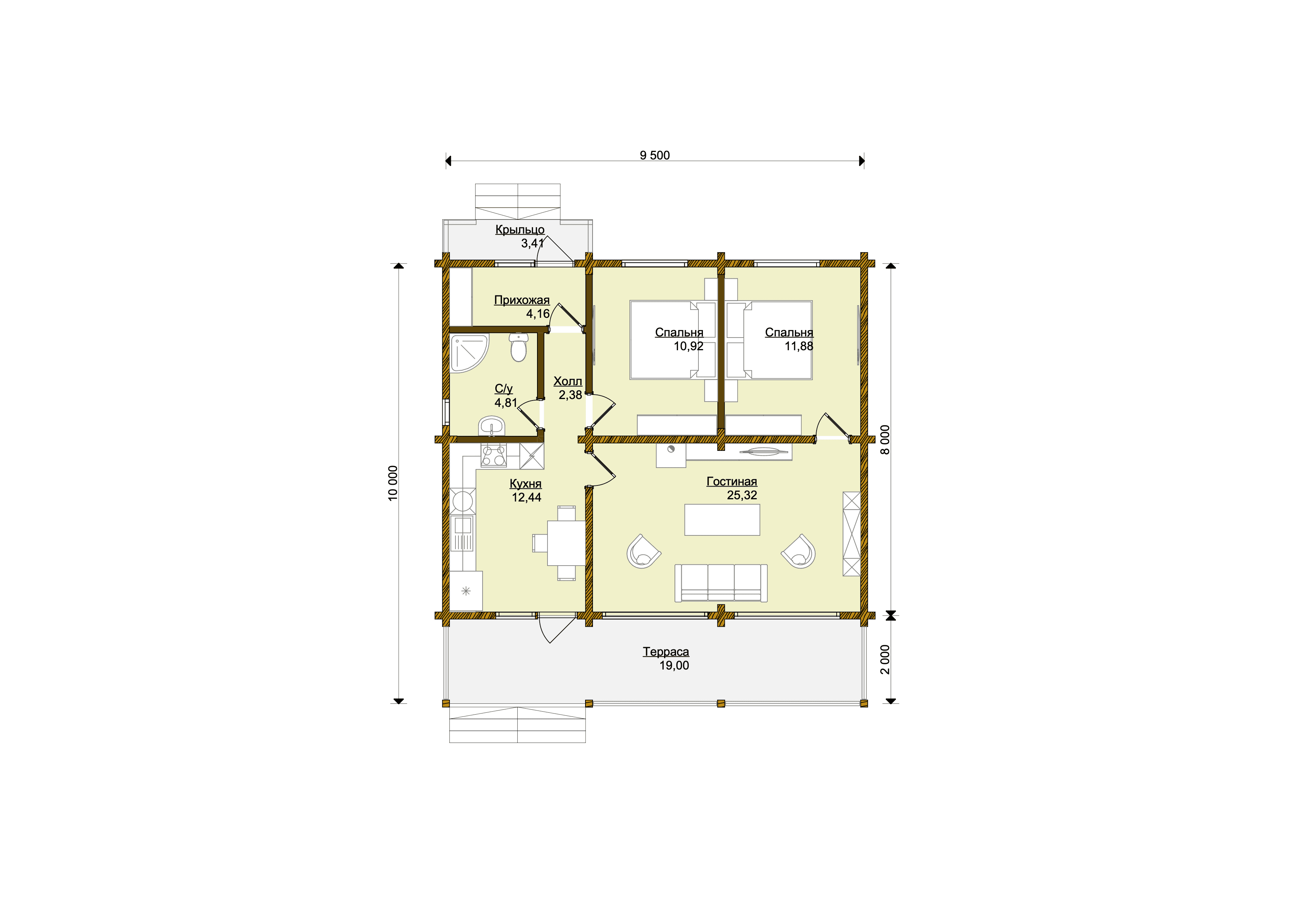
Дом из клееного бруса «Королев» | ЭкоТех
Застройщик: Эко-Тех
98.24 м²
1 / 2
🏠
98.24 м²
🛏
2 спален
🚿
1 санузл.
📐
1 этаж
🧱
Клееный брус
Похожие проекты
Похожие по цене
Похожие по площади
Дом из газобетона Проект ГБ-204
3 спальн. · 2 санузл. · 1 этаж
от 5 729 000 ₽
→
Проект одноэтажного каркасного дома "Марс"
2 спальн. · 2 этаж
от 5 714 981 ₽
→
Проект C-290-1S
3 этаж
от 5 713 000 ₽
→
Проект дома «Роудс»
2 спальн. · 1 этаж
от 5 372 156 ₽
→
Проект дома «Очаково» | ЭкоТех
2 спальн. · 1 санузл. · 1 этаж
от 5 434 000 ₽
→
Проект дома «Эвермор»
2 спальн. · 1 этаж
от 5 459 070 ₽
→
На сайт застройщика