Перейти к контенту
Подбор и сравнение проектов домов от застройщиков Московской области
Подборщик домов
Калькулятор сметы
Калькулятор площади
Форум
Блог
Главная
›
Каталог проектов
›
Проект дома «Очаково» | ЭкоТех
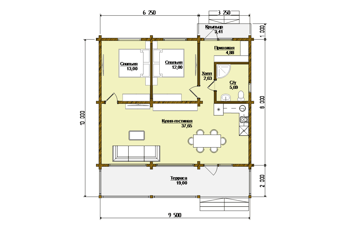
Проект дома «Очаково» | ЭкоТех
Застройщик: Эко-Тех
98.26 м²
1 / 2
🏠
98.26 м²
🛏
2 спален
🚿
1 санузл.
📐
1 этаж
🧱
Клееный брус
Похожие проекты
Похожие по цене
Похожие по площади
Проект К-115 13 на 15, площадью 194 за 7 724 250 руб
3 спальн. · 1 этаж
от 5 432 000 ₽
→
Проект К-156 11 на 9, площадью 194 за 6 500 250 руб
5 спальн. · 2 этаж
от 5 432 000 ₽
→
Дом из оцилиндрованного бревна «Карелия» | ЭкоТех
3 спальн. · 2 санузл. · 2 этаж
от 5 439 000 ₽
→
Проект дома «Роудс»
2 спальн. · 1 этаж
от 5 372 156 ₽
→
Дом из клееного бруса «Королев» | ЭкоТех
2 спальн. · 1 санузл. · 1 этаж
от 5 722 000 ₽
→
Проект дома «Эвермор»
2 спальн. · 1 этаж
от 5 459 070 ₽
→
На сайт застройщика