Перейти к контенту
Подбор и сравнение проектов домов от застройщиков Московской области
Подборщик домов
Калькулятор сметы
Калькулятор площади
Форум
Блог
Главная
›
Каталог проектов
›
Дом из клееного бруса «Пущино» | ЭкоТех
Дом из клееного бруса «Пущино» | ЭкоТех
Застройщик: Эко-Тех
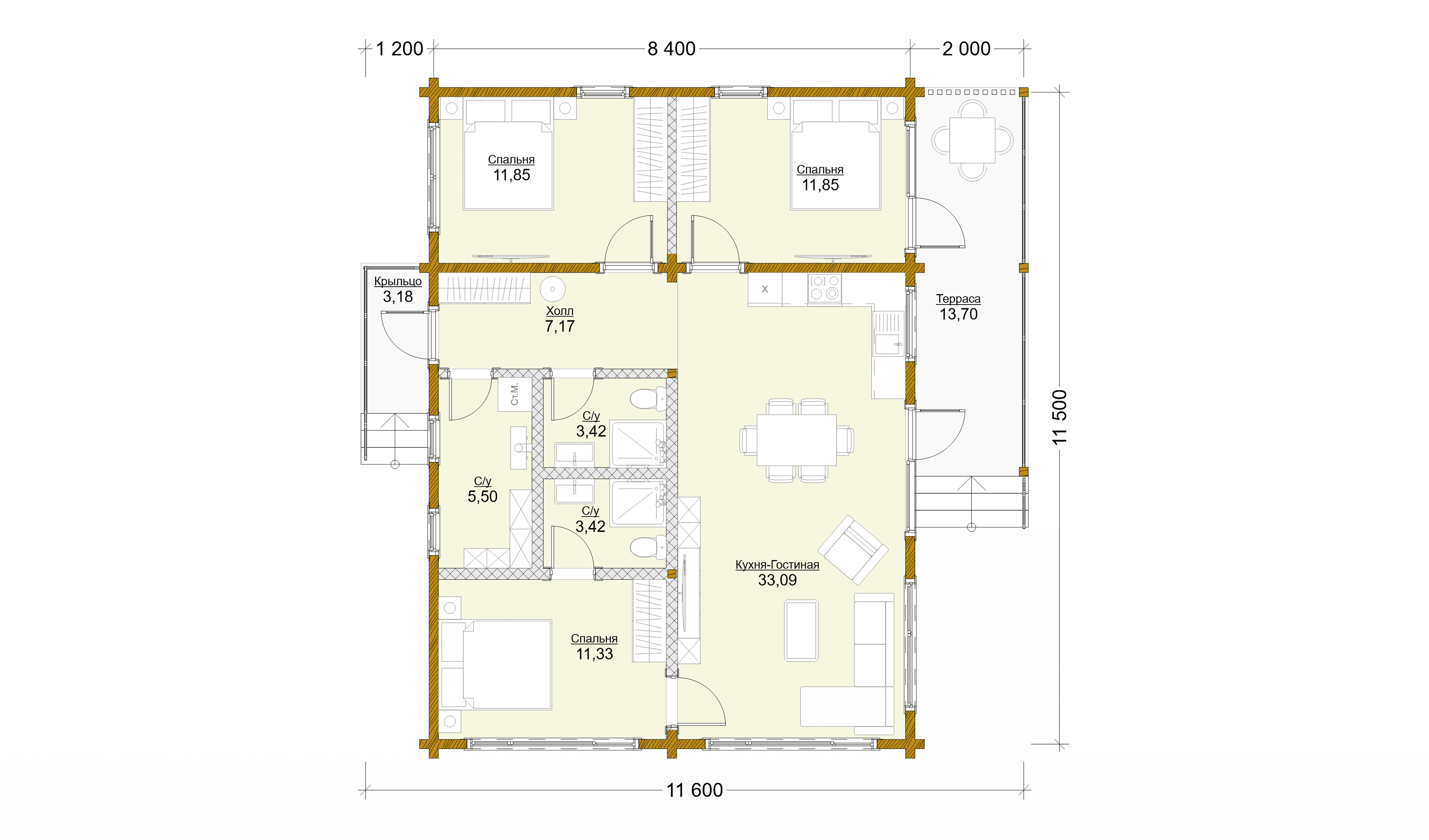
113.0 м²
1 / 2
🏠
113.0 м²
🛏
3 спален
🚿
2 санузл.
📐
1 этаж
🧱
Клееный брус
Похожие проекты
Похожие по цене
Похожие по площади
Дом из бруса «Норвег» | ЭкоТех
2 спальн. · 2 санузл. · 2 этаж
от 7 332 000 ₽
→
Каркасный дом С-196 КР «Фрэйм»
4 спальн. · 3 санузл. · 2 этаж
от 7 334 000 ₽
→
Проект К-157 14 на 9, площадью 262 за 8 680 500 руб
4 спальн. · 2 этаж
от 7 336 000 ₽
→
Дом по проекту «ЗС 243-2-18» - Золотое Сечение
3 спальн. · 2 санузл.
от 14 125 000 ₽
→
Дом по проекту «ЗС 4-22» - Золотое Сечение
2 спальн. · 1 санузл.
от 14 125 000 ₽
→
Проект К-3 8 на 8, площадью 113 за 3 867 000 руб
2 спальн. · 2 этаж
от 3 867 000 ₽
→
На сайт застройщика