Перейти к контенту
Подбор и сравнение проектов домов от застройщиков Московской области
Подборщик домов
Калькулятор сметы
Калькулятор площади
Форум
Блог
Главная
›
Каталог проектов
›
Дом из клееного бруса «Райт» | ЭкоТех
Дом из клееного бруса «Райт» | ЭкоТех
Застройщик: Эко-Тех
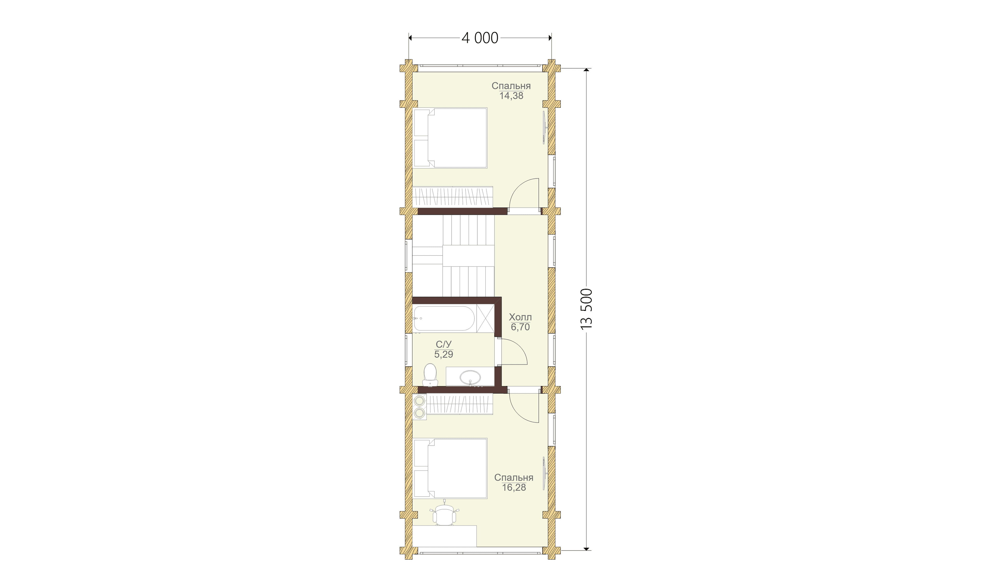
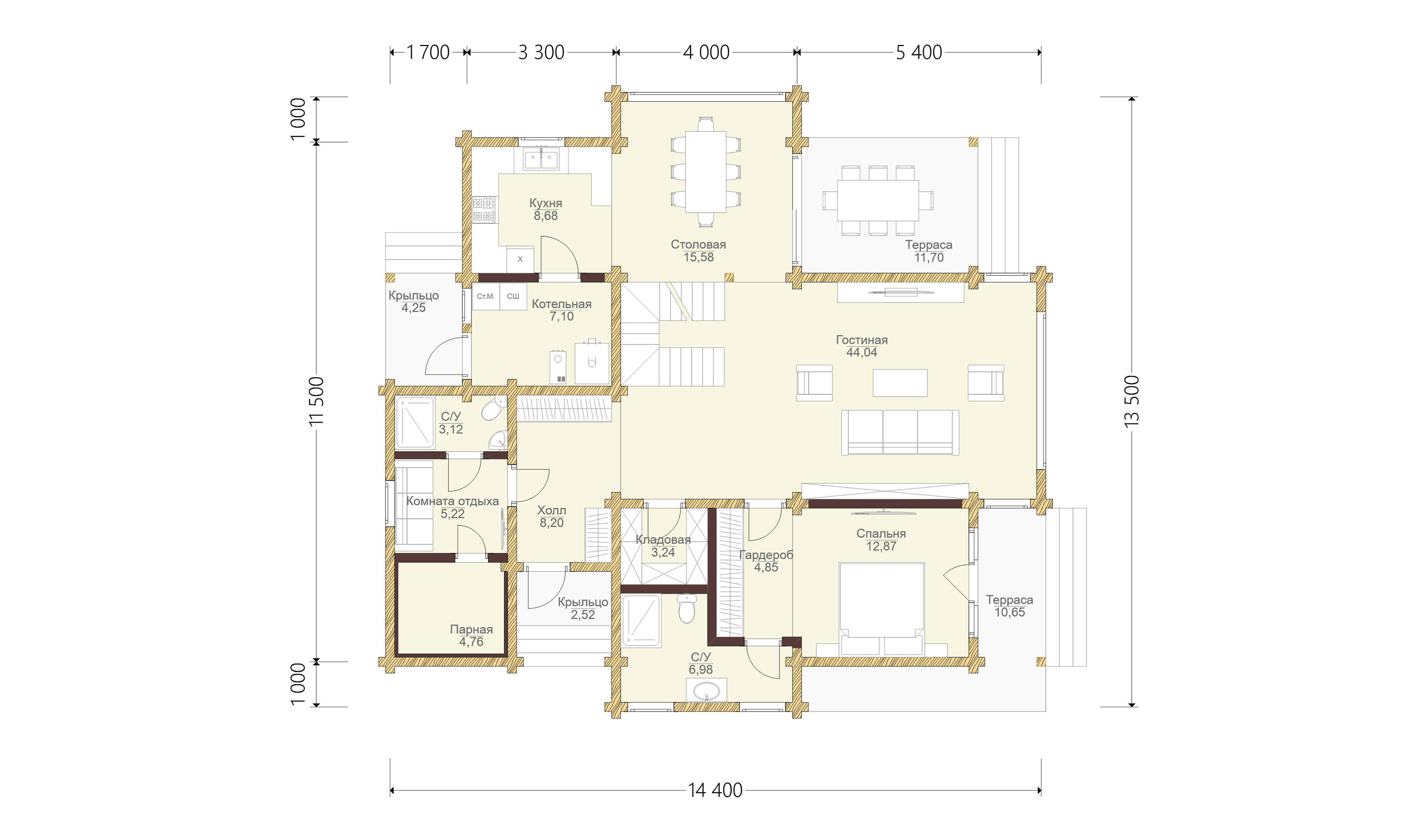
218.0 м²
1 / 3
🏠
218.0 м²
🛏
3 спален
🚿
3 санузл.
📐
2 этаж
🧱
Клееный брус
Похожие проекты
Похожие по цене
Похожие по площади
Проект T-221-1P
2 этаж
от 15 449 000 ₽
→
Проект двухэтажного дома "Уголок-М6" из бруса
4 спальн. · 2 этаж
от 15 444 298 ₽
→
Проект двухэтажного дома "Климово" из бруса
4 спальн. · 2 этаж
от 15 440 698 ₽
→
А-001
3 санузл. · 1 этаж
от 14 700 000 ₽
→
А-002
5 спальн. · 2 санузл. · 1 этаж
от 18 400 000 ₽
→
Дом по проекту «ЗС 195-24» - Золотое Сечение
5 спальн. · 2 санузл.
от 27 250 000 ₽
→
На сайт застройщика