Перейти к контенту
Подбор и сравнение проектов домов от застройщиков Московской области
Подборщик домов
Калькулятор сметы
Калькулятор площади
Форум
Блог
Главная
›
Каталог проектов
›
Проект T-221-1P
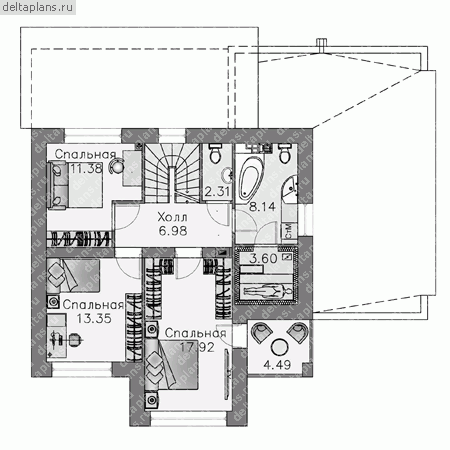
Проект T-221-1P
Застройщик: Юникс-Строй
220.7 м²
1 / 3
🏠
220.7 м²
📐
2 этаж
🧱
Пеноблок
Похожие проекты
Похожие по цене
Похожие по площади
Дом из клееного бруса «Райт» | ЭкоТех
3 спальн. · 3 санузл. · 2 этаж
от 15 449 000 ₽
→
Проект двухэтажного дома "Уголок-М6" из бруса
4 спальн. · 2 этаж
от 15 444 298 ₽
→
Проект двухэтажного дома "Климово" из бруса
4 спальн. · 2 этаж
от 15 440 698 ₽
→
Дом из газобетонных блоков С-221 ГБ «Чехов»
5 спальн. · 2 санузл. · 2 этаж
от 9 472 000 ₽
→
Дом из керамических блоков С-221 КЕ «Чехов»
5 спальн. · 2 санузл. · 2 этаж
от 9 472 000 ₽
→
Кирпичный дом С-221 К «Чехов»
5 спальн. · 2 санузл. · 2 этаж
от 10 164 000 ₽
→
На сайт застройщика