Перейти к контенту
Подбор и сравнение проектов домов от застройщиков Московской области
Подборщик домов
Калькулятор сметы
Калькулятор площади
Форум
Блог
Главная
›
Каталог проектов
›
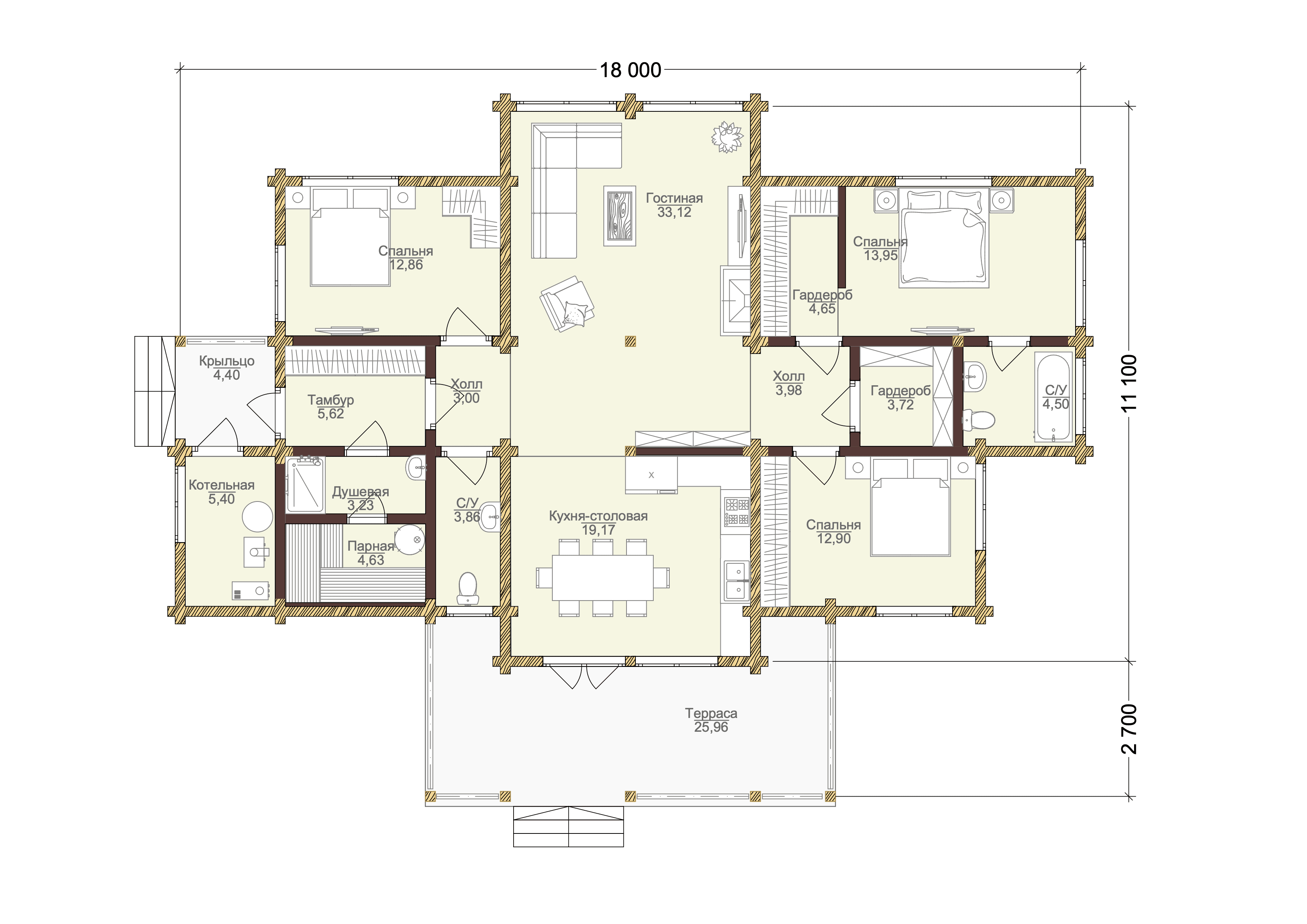
Дом из клееного бруса «Раменский» | ЭкоТех
Дом из клееного бруса «Раменский» | ЭкоТех
Застройщик: Эко-Тех
180.0 м²
1 / 2
🏠
180.0 м²
🛏
3 спален
🚿
2 санузл.
📐
1 этаж
🧱
Клееный брус
Похожие проекты
Похожие по цене
Похожие по площади
Кирпичный дом С-250 К «Династия»
5 спальн. · 3 санузл. · 2 этаж
от 11 129 000 ₽
→
Проект одноэтажного дома "Рамиата" из бруса
2 спальн. · 2 этаж
от 11 129 543 ₽
→
Проект одноэтажного коттеджа "Пик-а-Бу" из газобетона
4 спальн. · 2 этаж
от 11 130 000 ₽
→
Дом Горки 2 из газобетона: заказать в Москве по низкой цене
4 спальн. · 2 санузл. · 2 этаж
от 9 690 000 ₽
→
Дом Горки 2 из кирпича: заказать в Москве по низкой цене
4 спальн. · 2 санузл. · 2 этаж
от 9 690 000 ₽
→
Проект DOMFIX DUO - двухэтажный дом из газобетона
4 спальн. · 2 этаж
от 9 500 000 ₽
→
На сайт застройщика