Перейти к контенту
Подбор и сравнение проектов домов от застройщиков Московской области
Подборщик домов
Калькулятор сметы
Калькулятор площади
Форум
Блог
Главная
›
Каталог проектов
›
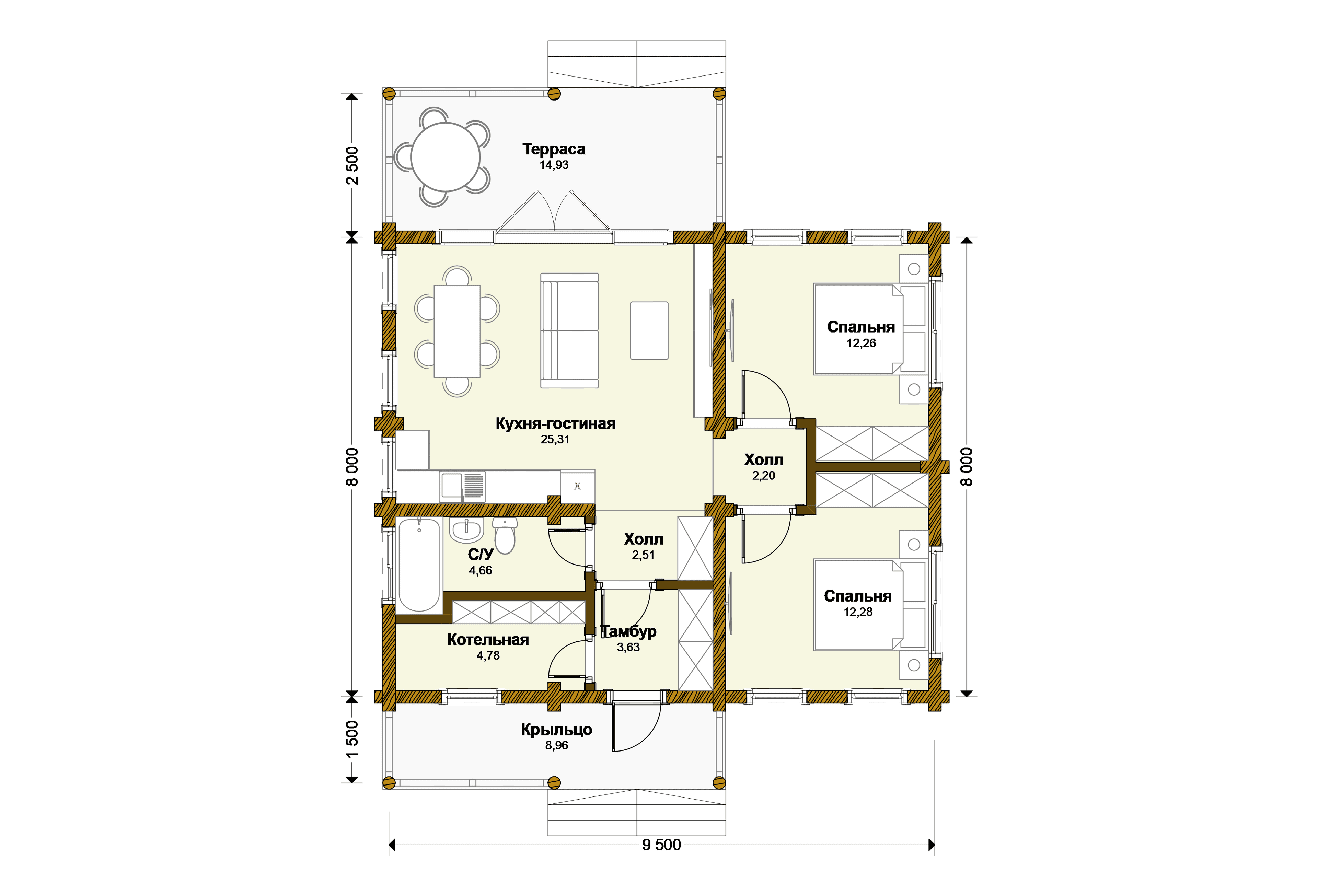
Одноэтажный дом из бревна «Воскресенск» | ЭкоТех
Одноэтажный дом из бревна «Воскресенск» | ЭкоТех
Застройщик: Эко-Тех
82.2 м²
1 / 2
🏠
82.2 м²
🛏
2 спален
🚿
1 санузл.
📐
1 этаж
🧱
Оцилиндрованное бревно
Похожие проекты
Похожие по цене
Похожие по площади
Лидер ЛК 6
4 спальн. · 1 санузл. · 2 этаж
от 2 988 000 ₽
→
Лидер ЛК 6
4 спальн. · 1 санузл. · 2 этаж
от 2 988 000 ₽
→
Дом «Ильин» 8х8 м
3 спальн. · 2 этаж
от 2 990 000 ₽
→
Одноэтажный дом из бревна «Долгопрудный» | ЭкоТех
2 спальн. · 1 санузл. · 1 этаж
от 2 528 000 ₽
→
Проект одноэтажного каркасного дома "Феба"
2 спальн. · 1 этаж
от 6 473 931 ₽
→
Проект одноэтажного дома с террасой Milan2-82 м² из газоблока — Домострой
3 спальн. · 1 санузл. · 1 этаж
от 7 324 000 ₽
→
На сайт застройщика