Перейти к контенту
Подбор и сравнение проектов домов от застройщиков Московской области
Подборщик домов
Калькулятор сметы
Калькулятор площади
Форум
Блог
Главная
›
Каталог проектов
›
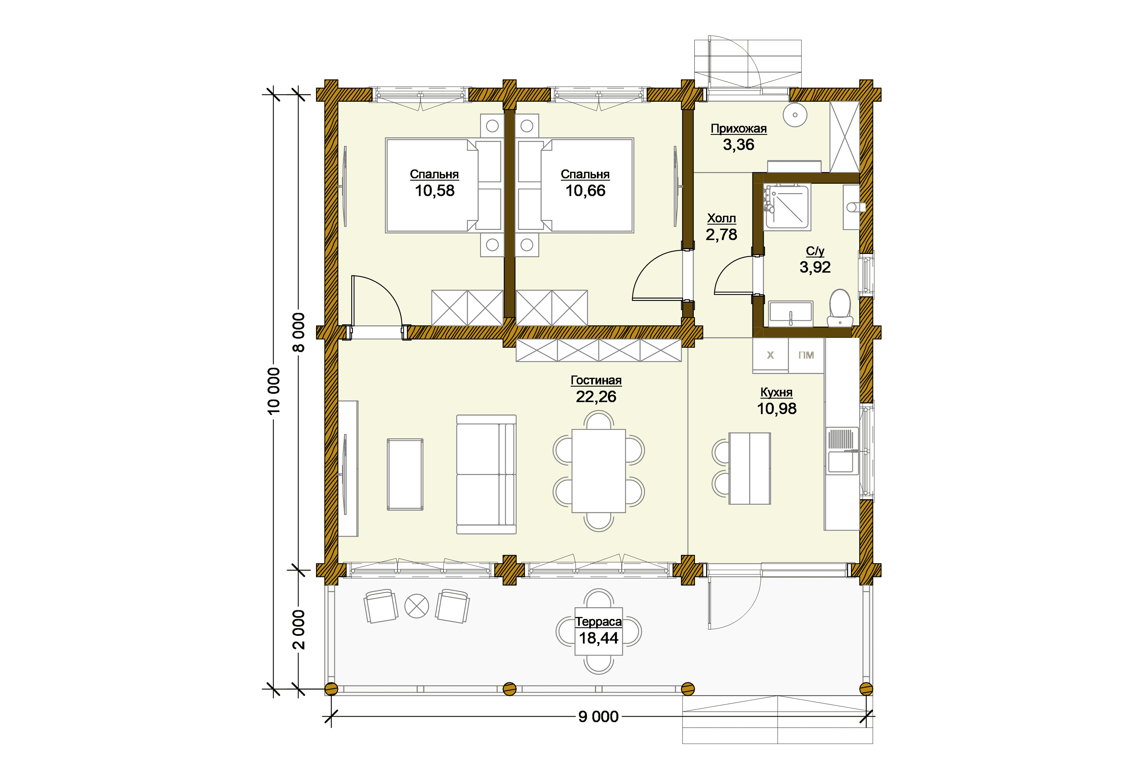
Одноэтажный дом из бревна «Долгопрудный» | ЭкоТех
Одноэтажный дом из бревна «Долгопрудный» | ЭкоТех
Застройщик: Эко-Тех
82.2 м²
1 / 2
🏠
82.2 м²
🛏
2 спален
🚿
1 санузл.
📐
1 этаж
🧱
Оцилиндрованное бревно
Похожие проекты
Похожие по цене
Похожие по площади
Проект дома Свеча-3
3 этаж
от 2 518 000 ₽
→
Проект дома Имение-3
2 этаж
от 2 517 679 ₽
→
Строительство каркасного дома 7х7 "Паули" под ключ
2 спальн. · 1 санузл. · 1 этаж
от 2 516 000 ₽
→
Одноэтажный дом из бревна «Воскресенск» | ЭкоТех
2 спальн. · 1 санузл. · 1 этаж
от 2 987 000 ₽
→
Проект одноэтажного каркасного дома "Феба"
2 спальн. · 1 этаж
от 6 473 931 ₽
→
Проект одноэтажного дома с террасой Milan2-82 м² из газоблока — Домострой
3 спальн. · 1 санузл. · 1 этаж
от 7 324 000 ₽
→
На сайт застройщика