Перейти к контенту
Подбор и сравнение проектов домов от застройщиков Московской области
Подборщик домов
Калькулятор сметы
Калькулятор площади
Форум
Блог
Главная
›
Каталог проектов
›
Проект дома «Беловежская Пуща» | ЭкоТех
Проект дома «Беловежская Пуща» | ЭкоТех
Застройщик: Эко-Тех
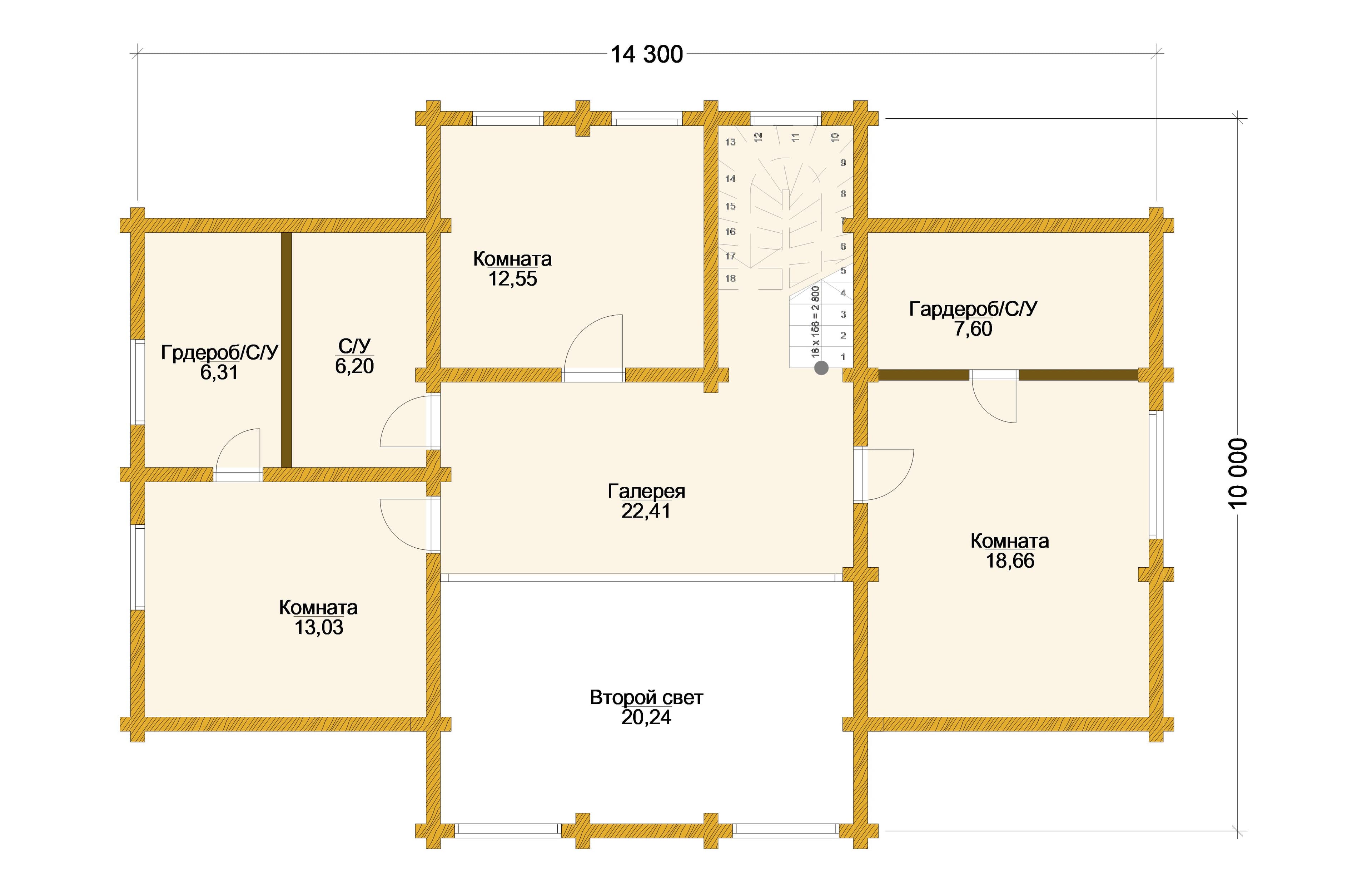
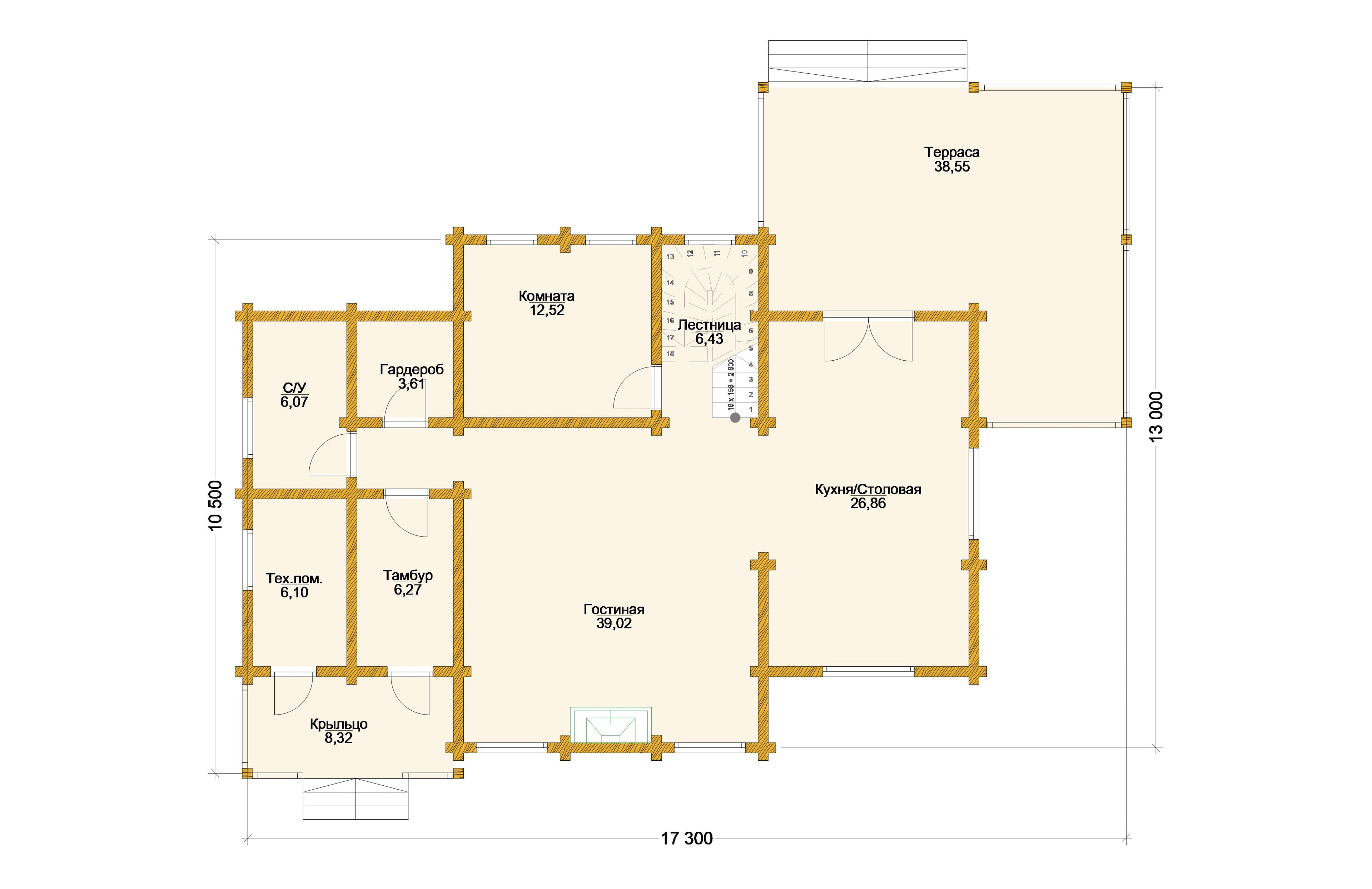
283.0 м²
1 / 3
🏠
283.0 м²
🛏
4 спален
🚿
4 санузл.
📐
2 этаж
🧱
Клееный брус
Похожие проекты
Похожие по цене
Похожие по площади
Проект V-218-1P
3 этаж
от 15 289 400 ₽
→
Проект G-218-1P
2 этаж
от 15 290 800 ₽
→
Кирпичный дом С-358 К «Арфа»
3 спальн. · 4 санузл. · 3 этаж
от 15 295 000 ₽
→
Проект W-283-1K
2 этаж
от 23 197 800 ₽
→
Проект одноэтажного дома "Аль Таяр" из бруса с пристройкой
7 спальн. · 2 этаж
от 20 314 310 ₽
→
Проект дома D-283-1P
3 этаж
от 19 838 000 ₽
→
На сайт застройщика