Перейти к контенту
Подбор и сравнение проектов домов от застройщиков Московской области
Подборщик домов
Калькулятор сметы
Калькулятор площади
Форум
Блог
Главная
›
Каталог проектов
›
Проект дома «Калуга» | ЭкоТех
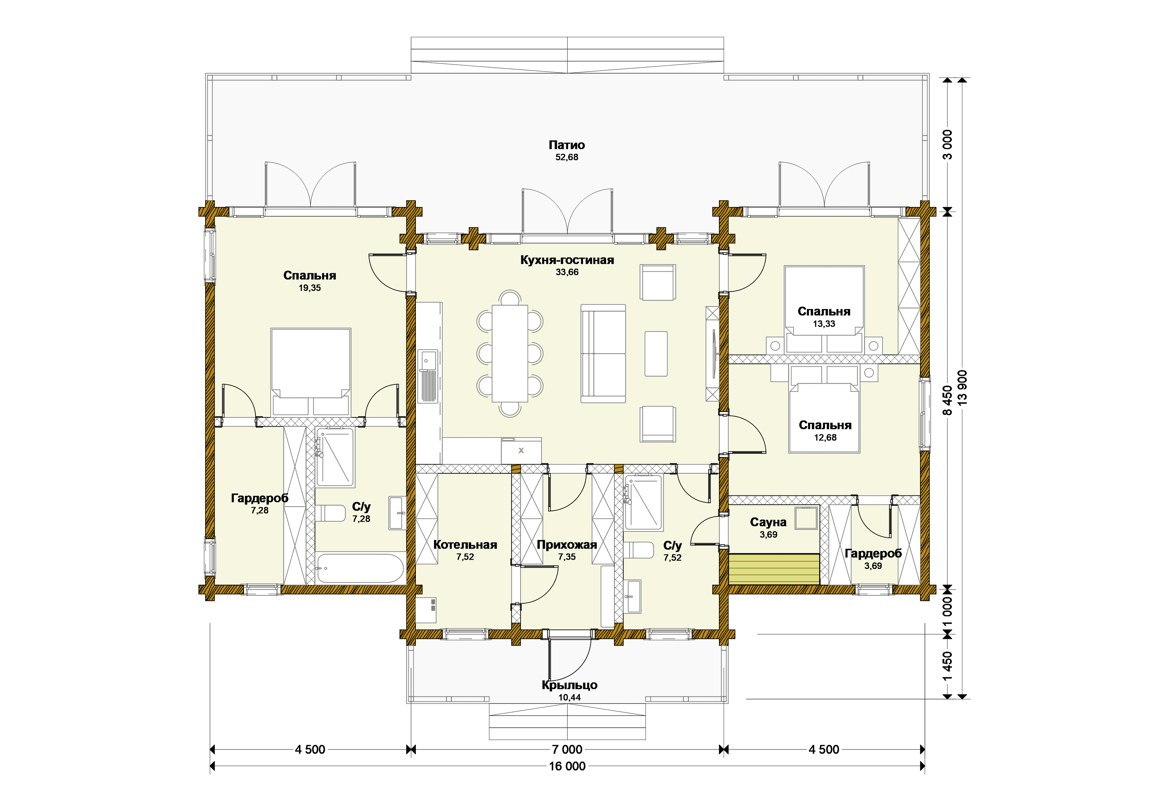
Проект дома «Калуга» | ЭкоТех
Застройщик: Эко-Тех
201.8 м²
1 / 2
🏠
201.8 м²
🛏
3 спален
🚿
2 санузл.
📐
1 этаж
🧱
Клееный брус
Похожие проекты
Похожие по цене
Похожие по площади
Премьер 5
6 спальн. · 2 санузл. · 2 этаж
от 9 724 000 ₽
→
Проект U-138-1P
2 этаж
от 9 723 700 ₽
→
Проект дома «Ступино» | ЭкоТех
2 спальн. · 1 санузл. · 1 этаж
от 9 723 000 ₽
→
Проект дома из газоблоков 15х12 ГББ-200: цена 8167000 руб.
5 спальн. · 2 санузл. · 2 этаж
от 12 670 000 ₽
→
Проект дома из керамоблоков 15х12 ТКБ-200: цена 8026000 руб.
5 спальн. · 3 санузл. · 2 этаж
от 10 911 000 ₽
→
Дом в классическом стиле «Белвуар»
4 спальн. · 2 санузл. · 2 этаж
от 12 102 000 ₽
→
На сайт застройщика