Перейти к контенту
Подбор и сравнение проектов домов от застройщиков Московской области
Подборщик домов
Калькулятор сметы
Калькулятор площади
Форум
Блог
Главная
›
Каталог проектов
›
Проект дома «Кубинка» | ЭкоТех
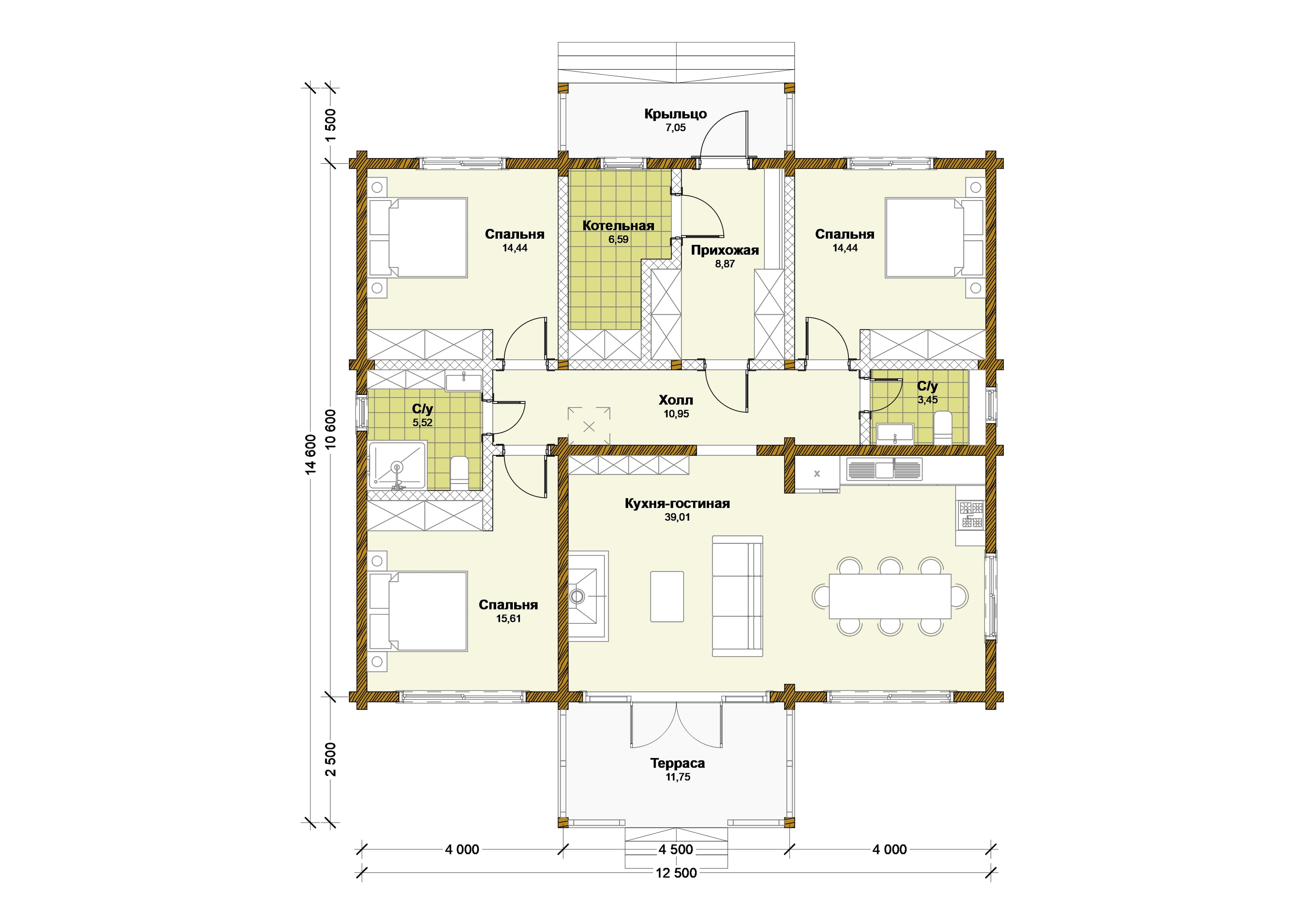
Проект дома «Кубинка» | ЭкоТех
Застройщик: Эко-Тех
137.7 м²
1 / 2
🏠
137.7 м²
🛏
3 спален
🚿
2 санузл.
📐
1 этаж
🧱
Клееный брус
Похожие проекты
Похожие по цене
Похожие по площади
Проект C-066-1D
1 санузл. · 1 этаж
от 9 891 000 ₽
→
Проект дома J-141-1P
2 этаж
от 9 891 000 ₽
→
Дом из клееного бруса «Московский» | ЭкоТех
5 спальн. · 2 санузл. · 2 этаж
от 9 897 000 ₽
→
Проект каркасного дома КП-128
3 спальн. · 1 этаж
от 6 950 000 ₽
→
Проект J-155-1P
2 этаж
от 9 632 000 ₽
→
Проект G-138-1P
3 этаж
от 9 625 000 ₽
→
На сайт застройщика