Перейти к контенту
Подбор и сравнение проектов домов от застройщиков Московской области
Подборщик домов
Калькулятор сметы
Калькулятор площади
Форум
Блог
Главная
›
Каталог проектов
›
Проект J-155-1P
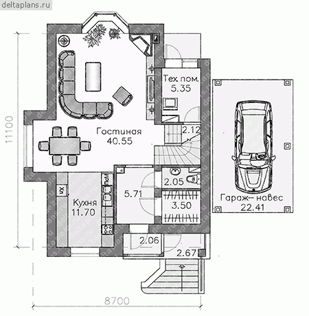
Проект J-155-1P
Застройщик: Юникс-Строй
137.6 м²
1 / 3
🏠
137.6 м²
📐
2 этаж
🧱
Пеноблок
Похожие проекты
Похожие по цене
Похожие по площади
Боярин 5
5 спальн. · 2 санузл. · 2 этаж
от 9 635 000 ₽
→
Боярин 5
5 спальн. · 2 санузл. · 2 этаж
от 9 635 000 ₽
→
Проект одноэтажного дома "Чех-М2" (с топочной) из бруса
4 спальн. · 2 этаж
от 9 628 992 ₽
→
Проект каркасного дома КП-128
3 спальн. · 1 этаж
от 6 950 000 ₽
→
Проект дома «Кубинка» | ЭкоТех
3 спальн. · 2 санузл. · 1 этаж
от 9 891 000 ₽
→
Проект G-138-1P
3 этаж
от 9 625 000 ₽
→
На сайт застройщика