Перейти к контенту
Подбор и сравнение проектов домов от застройщиков Московской области
Подборщик домов
Калькулятор сметы
Калькулятор площади
Форум
Блог
Главная
›
Каталог проектов
›
Проект дома «Ступино» | ЭкоТех
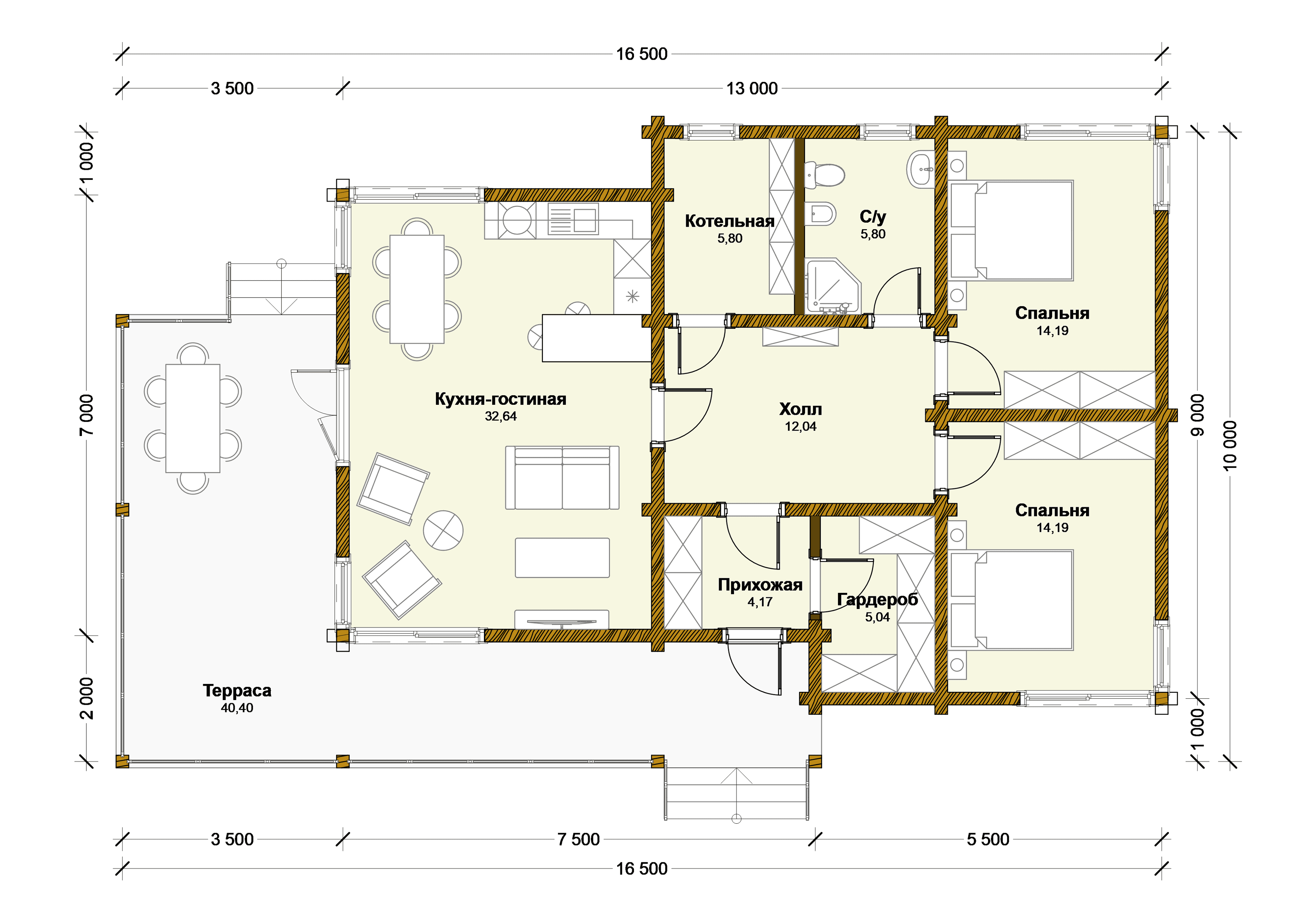
Проект дома «Ступино» | ЭкоТех
Застройщик: Эко-Тех
134.0 м²
1 / 2
🏠
134.0 м²
🛏
2 спален
🚿
1 санузл.
📐
1 этаж
🧱
Клееный брус
Похожие проекты
Похожие по цене
Похожие по площади
Проект U-138-1P
2 этаж
от 9 723 700 ₽
→
Премьер 5
6 спальн. · 2 санузл. · 2 этаж
от 9 724 000 ₽
→
Проект дома «Калуга» | ЭкоТех
3 спальн. · 2 санузл. · 1 этаж
от 9 725 000 ₽
→
Проект одноэтажного коттеджа "Оливин" из газобетона
2 спальн. · 2 этаж
от 7 872 000 ₽
→
Строительство каркасного дома 10х8 "Сканди" под ключ
4 спальн. · 2 санузл. · 2 этаж
от 6 462 000 ₽
→
Дом по проекту «ЗС 199-24» - Золотое Сечение
2 спальн. · 2 санузл.
от 16 750 000 ₽
→
На сайт застройщика