Перейти к контенту
Подбор и сравнение проектов домов от застройщиков Московской области
Подборщик домов
Калькулятор сметы
Калькулятор площади
Форум
Блог
Главная
›
Каталог проектов
›
Проект дома K-418-1P
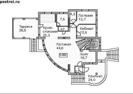
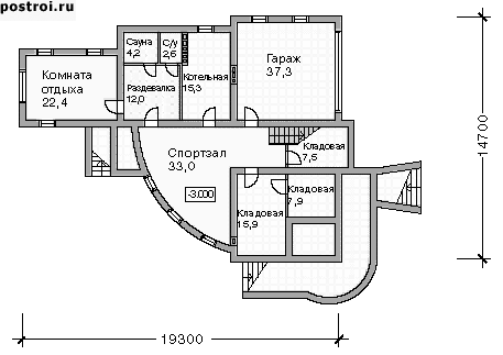
Проект дома K-418-1P
Застройщик: Юникс-Строй
418.3 м²
1 / 5
🏠
418.3 м²
📐
3 этаж
🧱
Пеноблок
Похожие проекты
Похожие по цене
Похожие по площади
Двухэтажный особняк проект Райт
4 спальн. · 4 санузл. · 2 этаж
от 29 287 500 ₽
→
Проект E-357-1K
3 этаж
от 29 274 000 ₽
→
Проект J-357-1K
3 этаж
от 29 257 600 ₽
→
Вилла с бассейном «Камлау»
3 спальн. · 4 санузл. · 2 этаж
от 25 092 000 ₽
→
Проект T-419-1K
3 этаж
от 34 317 000 ₽
→
Дом из керамических блоков С-418 КЕ «Успех»
6 спальн. · 4 санузл. · 2 этаж
от 17 981 000 ₽
→
На сайт застройщика