Перейти к контенту
Подбор и сравнение проектов домов от застройщиков Московской области
Подборщик домов
Калькулятор сметы
Калькулятор площади
Форум
Блог
Главная
›
Каталог проектов
›
Проект T-419-1K
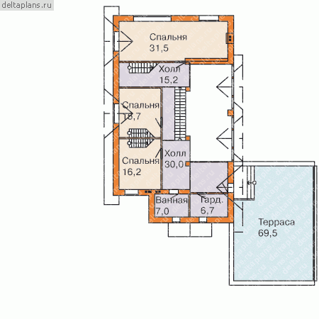
Проект T-419-1K
Застройщик: Юникс-Строй
418.5 м²
1 / 4
🏠
418.5 м²
📐
3 этаж
🧱
Кирпич
Похожие проекты
Похожие по цене
Похожие по площади
Двухэтажный дом в стиле Райта «Далс»
7 спальн. · 6 санузл. · 2 этаж
от 34 308 000 ₽
→
Проект коттеджа «Rockville»
6 спальн. · 5 санузл.
от 34 350 000 ₽
→
Проект коттеджа «Rockville»
6 спальн. · 5 санузл.
от 34 350 000 ₽
→
Проект дома K-418-1P
3 этаж
от 29 281 000 ₽
→
Вилла с бассейном «Камлау»
3 спальн. · 4 санузл. · 2 этаж
от 25 092 000 ₽
→
Проект дома H-419-1P
3 этаж
от 29 323 000 ₽
→
На сайт застройщика