Перейти к контенту
Подбор и сравнение проектов домов от застройщиков Московской области
Подборщик домов
Калькулятор сметы
Калькулятор площади
Форум
Блог
Главная
›
Каталог проектов
›
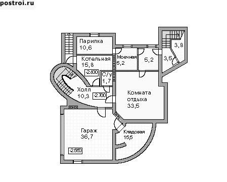
Проект дома L-457-1P
Проект дома L-457-1P
Застройщик: Юникс-Строй
457.4 м²
1 / 4
🏠
457.4 м²
📐
3 этаж
🧱
Пеноблок
Похожие проекты
Похожие по цене
Похожие по площади
Дом по проекту «ЗС 233-24» - Золотое Сечение
4 спальн. · 1 санузл.
от 32 000 000 ₽
→
Проект двухэтажного дома "Белый шум" из бруса
6 спальн. · 2 этаж
от 32 044 064 ₽
→
Проект R-390-1K
2 этаж
от 31 980 000 ₽
→
Проект дома V-458-1P
3 этаж
от 32 081 000 ₽
→
Проект Giessen
4 спальн. · 6 санузл.
от 22 900 000 ₽
→
Дом с комбинированным фасадом «Гессен»
4 спальн. · 6 санузл. · 2 этаж
от 27 504 000 ₽
→
На сайт застройщика