Перейти к контенту
Подбор и сравнение проектов домов от застройщиков Московской области
Подборщик домов
Калькулятор сметы
Калькулятор площади
Форум
Блог
Главная
›
Каталог проектов
›
Проект M-389-1K
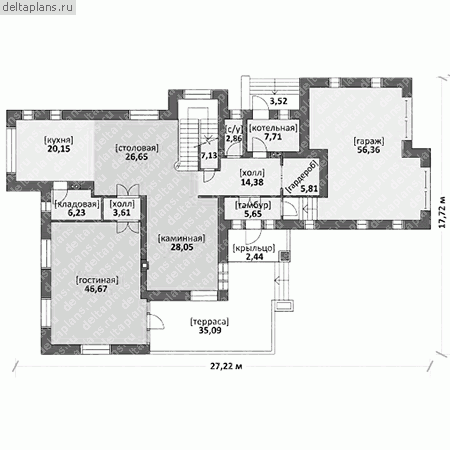
Проект M-389-1K
Застройщик: Юникс-Строй
389.95 м²
1 / 3
🏠
389.95 м²
📐
2 этаж
🧱
Кирпич
Похожие проекты
Похожие по цене
Похожие по площади
Проект R-390-1K
2 этаж
от 31 980 000 ₽
→
Дом по проекту «ЗС 233-24» - Золотое Сечение
4 спальн. · 1 санузл.
от 32 000 000 ₽
→
Проект дома L-457-1P
3 этаж
от 32 018 000 ₽
→
Дом Покровское 1 из газобетона: заказать в Москве по низкой цене
3 санузл. · 2 этаж
от 14 560 000 ₽
→
Дом Покровское 1 из кирпича: заказать в Москве по низкой цене
3 санузл. · 2 этаж
от 14 560 000 ₽
→
Проект R-390-1K
2 этаж
от 31 980 000 ₽
→
На сайт застройщика