Перейти к контенту
Подбор и сравнение проектов домов от застройщиков Московской области
Подборщик домов
Калькулятор сметы
Калькулятор площади
Форум
Блог
Главная
›
Каталог проектов
›
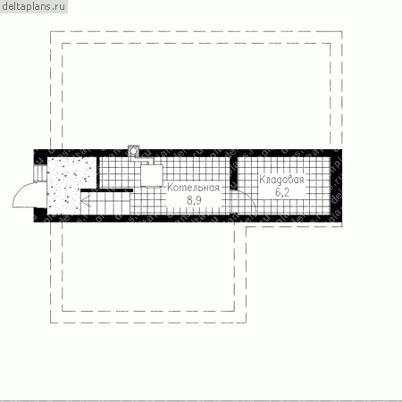
Проект дома M-140-1P
Проект дома M-140-1P
Застройщик: Юникс-Строй
146.0 м²
1 / 4
🏠
146.0 м²
📐
3 этаж
🧱
Пеноблок
Похожие проекты
Похожие по цене
Похожие по площади
Дома из керамических блоков Вилла 2 XS под ключ
4 спальн. · 2 санузл. · 2 этаж
от 10 217 300 ₽
→
Проект одноэтажного дома "Охотник" из бруса
3 спальн. · 2 этаж
от 10 223 794 ₽
→
Проект одноэтажного каркасного дома "Гордон"
4 спальн. · 2 этаж
от 10 224 621 ₽
→
Дом одноэтажный №378
1 этаж
от 11 799 650 ₽
→
Одноэтажный дом 3 спальни №378
1 этаж
от 11 871 700 ₽
→
Проект двухэтажного дома с террасой и балконом Olimp-146 м² из газоблока — Домострой
5 спальн. · 2 санузл. · 2 этаж
от 12 167 000 ₽
→
На сайт застройщика