Перейти к контенту
Подбор и сравнение проектов домов от застройщиков Московской области
Подборщик домов
Калькулятор сметы
Калькулятор площади
Форум
Блог
Главная
›
Каталог проектов
›
Проект дома M-246-2P
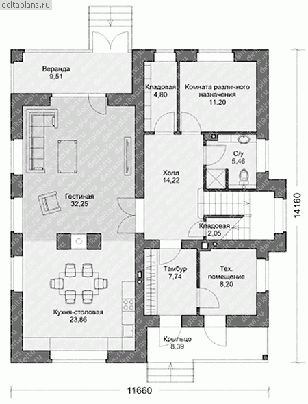
Проект дома M-246-2P
Застройщик: Юникс-Строй
247.33 м²
1 / 3
🏠
247.33 м²
📐
2 этаж
🧱
Пеноблок
Похожие проекты
Похожие по цене
Похожие по площади
Проект M-115-1D
2 этаж
от 17 310 000 ₽
→
Проект D-247-1P
3 этаж
от 17 304 000 ₽
→
Дом из бревна ручной рубки «Ньютон» | ЭкоТех
4 спальн. · 2 санузл. · 2 этаж
от 17 323 270 ₽
→
Проект U-246-1K
2 этаж
от 20 279 420 ₽
→
Проект D-247-1P
3 этаж
от 17 304 000 ₽
→
Проект V-247-1P
3 этаж
от 17 324 300 ₽
→
На сайт застройщика