Перейти к контенту
Подбор и сравнение проектов домов от застройщиков Московской области
Подборщик домов
Калькулятор сметы
Калькулятор площади
Форум
Блог
Главная
›
Каталог проектов
›
Проект U-246-1K
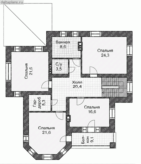
Проект U-246-1K
Застройщик: Юникс-Строй
247.31 м²
1 / 3
🏠
247.31 м²
📐
2 этаж
🧱
Кирпич
Похожие проекты
Похожие по цене
Похожие по площади
Проект S-248-1K
2 этаж
от 20 295 000 ₽
→
Проект K-290-1P
3 этаж
от 20 300 000 ₽
→
Дом по проекту «ЗС 226-24» - Золотое Сечение
2 спальн. · 2 санузл.
от 20 250 000 ₽
→
Проект дома M-246-2P
2 этаж
от 17 313 100 ₽
→
Проект D-247-1P
3 этаж
от 17 304 000 ₽
→
Проект V-247-1P
3 этаж
от 17 324 300 ₽
→
На сайт застройщика