Перейти к контенту
Подбор и сравнение проектов домов от застройщиков Московской области
Подборщик домов
Калькулятор сметы
Калькулятор площади
Форум
Блог
Главная
›
Каталог проектов
›
Проект A-145-1K
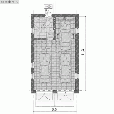
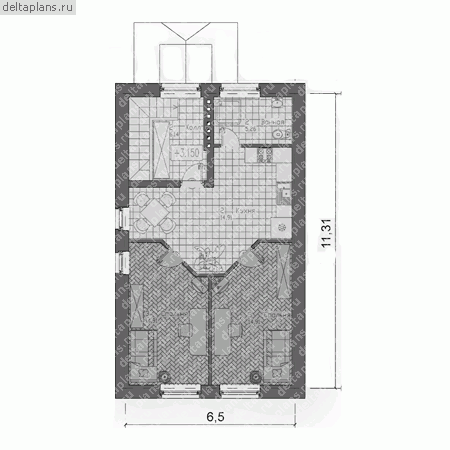
Проект A-145-1K
Застройщик: Юникс-Строй
145.0 м²
1 / 3
🏠
145.0 м²
📐
2 этаж
🧱
Кирпич
Похожие проекты
Похожие по цене
Похожие по площади
Каркасный дом С-322 КР «Ясень»
4 спальн. · 4 санузл. · 2 этаж
от 11 889 000 ₽
→
Проект К-221 11 на 17, площадью 352 за 11 888 250 руб
5 спальн. · 2 этаж
от 11 888 250 ₽
→
Проект двухэтажного коттеджа "Свет-Елена" из газобетона
4 спальн. · 2 этаж
от 11 888 000 ₽
→
Проект одноэтажного дома "Ариель" из бруса
4 спальн. · 2 этаж
от 11 019 354 ₽
→
Проект одноэтажного каркасного дома "Добряк"
3 спальн. · 2 этаж
от 10 661 869 ₽
→
Проект одноэтажного каркасного дома "Ласточка-1"
4 спальн. · 2 этаж
от 10 474 002 ₽
→
На сайт застройщика