Перейти к контенту
Подбор и сравнение проектов домов от застройщиков Московской области
Подборщик домов
Калькулятор сметы
Калькулятор площади
Форум
Блог
Главная
›
Каталог проектов
›
Проект E-170-1P
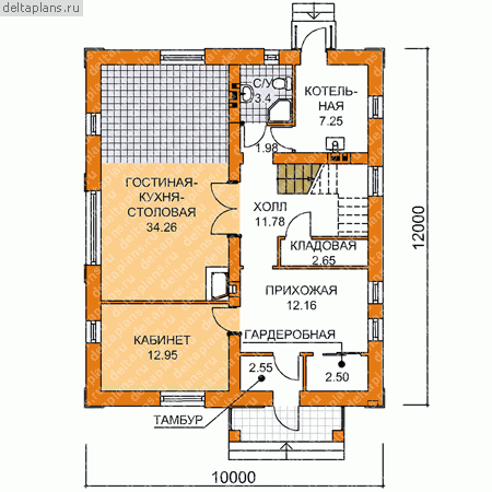
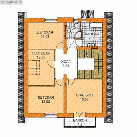
Проект E-170-1P
Застройщик: Юникс-Строй
169.89 м²
1 / 3
🏠
169.89 м²
📐
2 этаж
🧱
Пеноблок
Похожие проекты
Похожие по цене
Похожие по площади
Проект T-143-2P
2 этаж
от 11 893 000 ₽
→
Проект A-145-1K
2 этаж
от 11 890 000 ₽
→
Каркасный дом С-322 КР «Ясень»
4 спальн. · 4 санузл. · 2 этаж
от 11 889 000 ₽
→
Проект T-143-2P
2 этаж
от 11 893 000 ₽
→
Проект каркасного дома КП-106
1 этаж
от 8 850 000 ₽
→
Уэльс 22
2 санузл. · 2 этаж
от 8 559 800 ₽
→
На сайт застройщика