Перейти к контенту
Подбор и сравнение проектов домов от застройщиков Московской области
Подборщик домов
Калькулятор сметы
Калькулятор площади
Форум
Блог
Главная
›
Каталог проектов
›
Проект A-175-1D
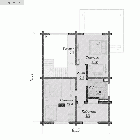
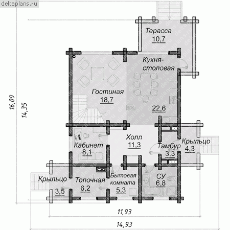
Проект A-175-1D
Застройщик: Юникс-Строй
175.0 м²
1 / 3
🏠
175.0 м²
🚿
2 санузл.
📐
2 этаж
🧱
Дерево
Похожие проекты
Похожие по цене
Похожие по площади
Дом по проекту «Эрфурт» - Золотое Сечение
3 спальн. · 2 санузл.
от 26 250 000 ₽
→
Проект дома B-375-1P
2 этаж
от 26 257 000 ₽
→
Проект A-320-1K
3 этаж
от 26 240 000 ₽
→
СМ-2
2 санузл. · 1 этаж
от 11 950 000 ₽
→
Проект одноэтажного дома "Глория" из бруса
2 спальн. · 2 этаж
от 13 652 297 ₽
→
Проект одноэтажного дома"Тайфун" из бруса
4 спальн. · 2 этаж
от 14 000 633 ₽
→
На сайт застройщика