Перейти к контенту
Подбор и сравнение проектов домов от застройщиков Московской области
Подборщик домов
Калькулятор сметы
Калькулятор площади
Форум
Блог
Главная
›
Каталог проектов
›
Проект дома B-375-1P
Проект дома B-375-1P
Застройщик: Юникс-Строй
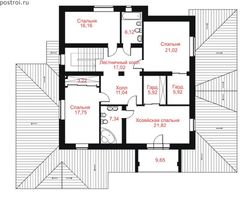
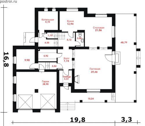
375.1 м²
1 / 3
🏠
375.1 м²
📐
2 этаж
🧱
Пеноблок
Похожие проекты
Похожие по цене
Похожие по площади
Дом по проекту «Эрфурт» - Золотое Сечение
3 спальн. · 2 санузл.
от 26 250 000 ₽
→
Проект A-175-1D
2 санузл. · 2 этаж
от 26 250 000 ₽
→
Проект S-320-1K
3 этаж
от 26 264 600 ₽
→
Дом Минаево из газобетона: заказать в Москве по низкой цене
2 этаж
от 19 990 000 ₽
→
Дом Минаево из кирпича: заказать в Москве по низкой цене
2 этаж
от 19 990 000 ₽
→
Дом из бревна ручной рубки «Ньютон» | ЭкоТех
4 спальн. · 2 санузл. · 2 этаж
от 17 323 270 ₽
→
На сайт застройщика