Перейти к контенту
Подбор и сравнение проектов домов от застройщиков Московской области
Подборщик домов
Калькулятор сметы
Калькулятор площади
Форум
Блог
Главная
›
Каталог проектов
›
Проект A-232-1P
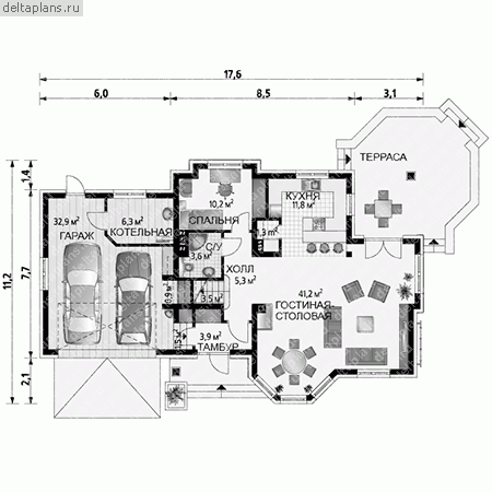
Проект A-232-1P
Застройщик: Юникс-Строй
232.1 м²
1 / 3
🏠
232.1 м²
📐
2 этаж
🧱
Пеноблок
Похожие проекты
Похожие по цене
Похожие по площади
Проект V-198-1K
2 этаж
от 16 244 200 ₽
→
Проект U-195-1K
2 этаж
от 16 241 740 ₽
→
Проект одноэтажного дома "Оригами-8" из бруса
4 спальн. · 2 этаж
от 16 252 431 ₽
→
Дом из кирпича Проект КД-11
3 спальн. · 2 санузл. · 2 этаж
от 420 000 ₽
→
Проект двухэтажный 11,5х12м № 346
2 этаж
от 9 902 950 ₽
→
Проект дома 11,5х12м № 346
2 этаж
от 9 902 950 ₽
→
На сайт застройщика