Перейти к контенту
Подбор и сравнение проектов домов от застройщиков Московской области
Подборщик домов
Калькулятор сметы
Калькулятор площади
Форум
Блог
Главная
›
Каталог проектов
›
Проект V-198-1K
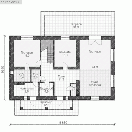
Проект V-198-1K
Застройщик: Юникс-Строй
198.1 м²
1 / 3
🏠
198.1 м²
📐
2 этаж
🧱
Кирпич
Похожие проекты
Похожие по цене
Похожие по площади
Проект U-195-1K
2 этаж
от 16 241 740 ₽
→
Проект A-232-1P
2 этаж
от 16 247 000 ₽
→
Проект К-196 19 на 15, площадью 580 за 19 293 750 руб
4 спальн. · 2 этаж
от 16 240 000 ₽
→
Проект одноэтажного коттеджа "Ренет" из газобетона
3 спальн. · 2 этаж
от 8 549 000 ₽
→
Проект T-198-1P
2 этаж
от 13 867 000 ₽
→
Проект U-195-1K
2 этаж
от 16 241 740 ₽
→
На сайт застройщика