Перейти к контенту
Подбор и сравнение проектов домов от застройщиков Московской области
Подборщик домов
Калькулятор сметы
Калькулятор площади
Форум
Блог
Главная
›
Каталог проектов
›
Проект T-198-1P
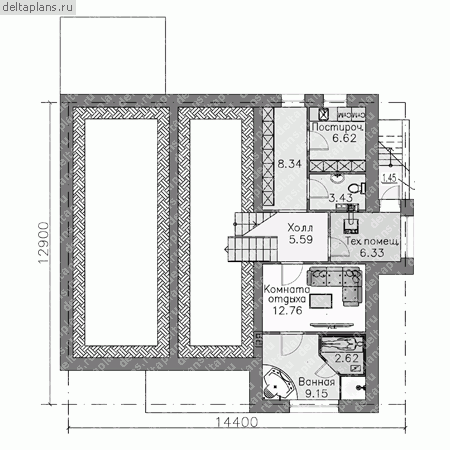
Проект T-198-1P
Застройщик: Юникс-Строй
198.1 м²
1 / 3
🏠
198.1 м²
📐
2 этаж
🧱
Пеноблок
Похожие проекты
Похожие по цене
Похожие по площади
Проект M-169-1K
2 этаж
от 13 865 380 ₽
→
Проект одноэтажного каркасного дома "Чери"
6 спальн. · 2 этаж
от 13 861 427 ₽
→
Проект F-156-2K
3 этаж
от 13 858 000 ₽
→
Проект одноэтажного коттеджа "Ренет" из газобетона
3 спальн. · 2 этаж
от 8 549 000 ₽
→
Проект V-198-1K
2 этаж
от 16 244 200 ₽
→
Проект U-195-1K
2 этаж
от 16 241 740 ₽
→
На сайт застройщика