Перейти к контенту
Подбор и сравнение проектов домов от застройщиков Московской области
Подборщик домов
Калькулятор сметы
Калькулятор площади
Форум
Блог
Главная
›
Каталог проектов
›
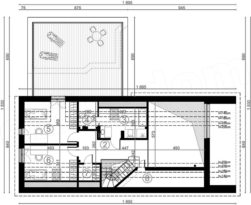
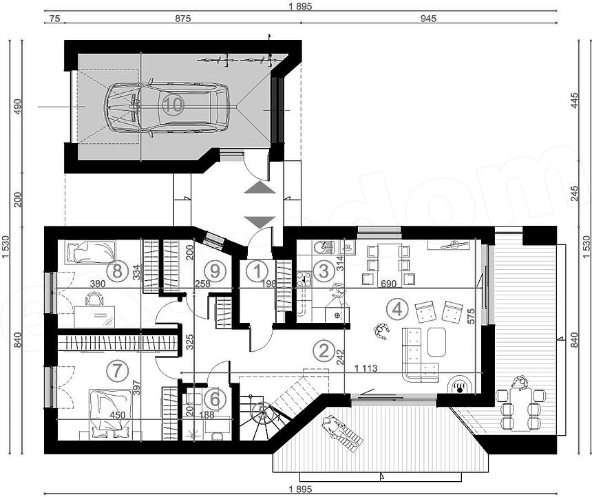
Проект К-196 19 на 15, площадью 580 за 19 293 750 руб
Проект К-196 19 на 15, площадью 580 за 19 293 750 руб
Застройщик: КаркасСтрой
580.0 м²
1 / 3
🏠
580.0 м²
🛏
4 спален
📐
2 этаж
🧱
Каркас
Похожие проекты
Похожие по цене
Похожие по площади
Проект G-232-1P
2 этаж
от 16 240 000 ₽
→
Проект дома V-232-1P
2 этаж
от 16 240 000 ₽
→
Проект U-194-1K
2 этаж
от 16 238 460 ₽
→
Проект К-196 19 на 15, площадью 580 за 19 293 750 руб
4 спальн. · 2 этаж
от 19 293 750 ₽
→
Большая загородная резиденция «Линден»
5 спальн. · 5 санузл. · 2 этаж
от 29 150 000 ₽
→
Проект M-501-1K
2 этаж
от 47 789 600 ₽
→
На сайт застройщика