Перейти к контенту
Подбор и сравнение проектов домов от застройщиков Московской области
Подборщик домов
Калькулятор сметы
Калькулятор площади
Форум
Блог
Главная
›
Каталог проектов
›
Проект U-194-1K
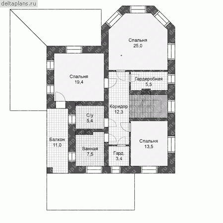
Проект U-194-1K
Застройщик: Юникс-Строй
198.03 м²
1 / 3
🏠
198.03 м²
📐
2 этаж
🧱
Кирпич
Похожие проекты
Похожие по цене
Похожие по площади
Проект К-196 19 на 15, площадью 580 за 19 293 750 руб
4 спальн. · 2 этаж
от 16 240 000 ₽
→
Проект G-232-1P
2 этаж
от 16 240 000 ₽
→
Проект дома V-232-1P
2 этаж
от 16 240 000 ₽
→
Проект одноэтажного дома "Аль Таяр" из бруса
5 спальн. · 2 этаж
от 15 840 716 ₽
→
Проект одноэтажного дома "Клубок" из бруса
5 спальн. · 2 этаж
от 14 042 363 ₽
→
Проект одноэтажного дома "Соловушка" из бруса
3 спальн. · 2 этаж
от 11 077 861 ₽
→
На сайт застройщика