Перейти к контенту
Подбор и сравнение проектов домов от застройщиков Московской области
Подборщик домов
Калькулятор сметы
Калькулятор площади
Форум
Блог
Главная
›
Каталог проектов
›
Проект G-232-1P
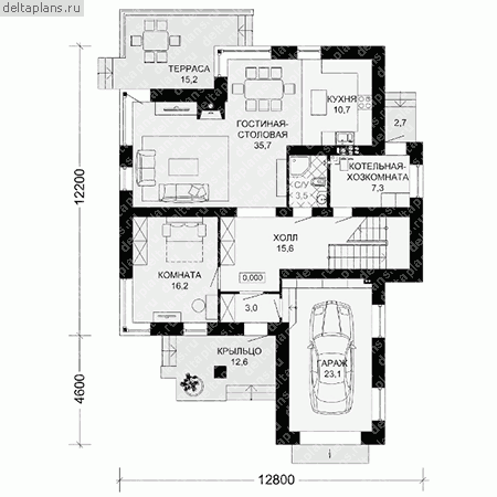
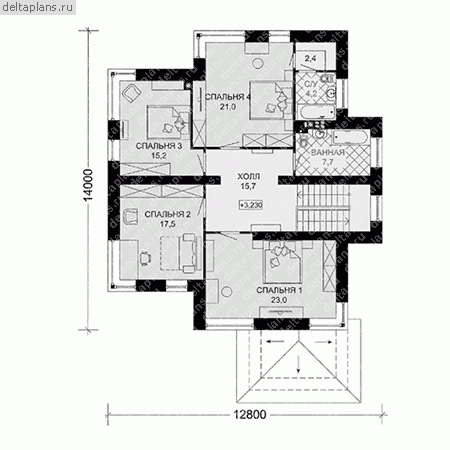
Проект G-232-1P
Застройщик: Юникс-Строй
232.0 м²
1 / 3
🏠
232.0 м²
📐
2 этаж
🧱
Пеноблок
Похожие проекты
Похожие по цене
Похожие по площади
Проект К-196 19 на 15, площадью 580 за 19 293 750 руб
4 спальн. · 2 этаж
от 16 240 000 ₽
→
Проект дома V-232-1P
2 этаж
от 16 240 000 ₽
→
Проект U-194-1K
2 этаж
от 16 238 460 ₽
→
Дом из кирпича Проект КД-11
3 спальн. · 2 санузл. · 2 этаж
от 420 000 ₽
→
Проект двухэтажный 11,5х12м № 346
2 этаж
от 9 902 950 ₽
→
Проект дома 11,5х12м № 346
2 этаж
от 9 902 950 ₽
→
На сайт застройщика