Перейти к контенту
Подбор и сравнение проектов домов от застройщиков Московской области
Подборщик домов
Калькулятор сметы
Калькулятор площади
Форум
Блог
Главная
›
Каталог проектов
›
Проект A-344-1K
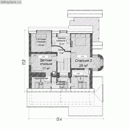
Проект A-344-1K
Застройщик: Юникс-Строй
343.78 м²
1 / 4
🏠
343.78 м²
📐
3 этаж
🧱
Кирпич
Похожие проекты
Похожие по цене
Похожие по площади
Проект C-177-1D
2 этаж
от 28 170 000 ₽
→
Проект G-187-1D
2 этаж
от 28 170 000 ₽
→
Проект M-343-1K
3 этаж
от 28 144 860 ₽
→
Проект дома из газоблоков 20х16 ГББ-344: цена 12213000 руб.
4 спальн. · 2 санузл. · 2 этаж
от 18 156 000 ₽
→
Проект дома из керамоблоков 20х16 ТКБ-344: цена 11823000 руб.
4 спальн. · 2 санузл. · 2 этаж
от 20 088 000 ₽
→
Проект K-344-1P
3 этаж
от 24 080 000 ₽
→
На сайт застройщика