Перейти к контенту
Подбор и сравнение проектов домов от застройщиков Московской области
Подборщик домов
Калькулятор сметы
Калькулятор площади
Форум
Блог
Главная
›
Каталог проектов
›
Проект G-187-1D
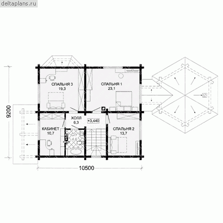
Проект G-187-1D
Застройщик: Юникс-Строй
187.8 м²
1 / 3
🏠
187.8 м²
📐
2 этаж
🧱
Дерево
Похожие проекты
Похожие по цене
Похожие по площади
Проект C-177-1D
2 этаж
от 28 170 000 ₽
→
Проект A-344-1K
3 этаж
от 28 189 960 ₽
→
Проект M-343-1K
3 этаж
от 28 144 860 ₽
→
Проект A-298-1P
2 этаж
от 13 146 000 ₽
→
Проект C-177-1D
2 этаж
от 28 170 000 ₽
→
Проект N-187-1K
2 этаж
от 15 407 800 ₽
→
На сайт застройщика