Перейти к контенту
Подбор и сравнение проектов домов от застройщиков Московской области
Подборщик домов
Калькулятор сметы
Калькулятор площади
Форум
Блог
Главная
›
Каталог проектов
›
Проект D-174-1P
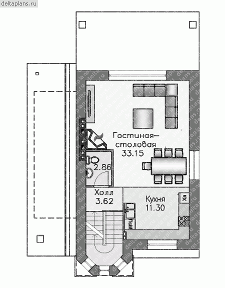
Проект D-174-1P
Застройщик: Юникс-Строй
173.56 м²
1 / 4
🏠
173.56 м²
📐
3 этаж
🧱
Пеноблок
Похожие проекты
Похожие по цене
Похожие по площади
Проект U-173-1P
2 этаж
от 12 149 900 ₽
→
Проект «Vice»
6 спальн. · 3 санузл.
от 12 150 000 ₽
→
Проект «Vice»
6 спальн. · 3 санузл.
от 12 150 000 ₽
→
Проект U-171-1K
2 этаж
от 14 232 740 ₽
→
Проект U-173-1P
2 этаж
от 12 149 900 ₽
→
Проект D-165-5P
2 этаж
от 12 145 000 ₽
→
На сайт застройщика